0 руб
Оформить заказВ табл. 126-142 приведены в основном подшипники с внутренним диаметром d до 100-120мм, но соответствующие ГОСТы предусматривают значения d меньше и свыше 100-120мм, а также некоторые промежуточные размеры d. Таблицы являются ограничительными относительно ГОСТ и в части серий подшипников.
Значения предельной частоты вращения nпред указаны в таблицах для случаев применения в подшипниках пластичного смазочного материала.
При применении жидкого смазочного материала значение предельной частоты вращения nпред увеличивают приблизительно на 20%.
126. Шариковые радиальные однорядные подшипники (по ГОСТ 8338—75)

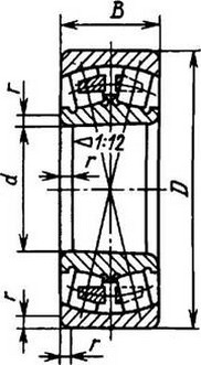
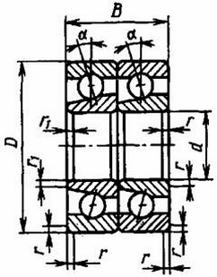
d - номинальный диаметр отверстия внутреннего кольца;
D - номинальный диаметр наружной цилиндрической поверхности наружного кольца;
В - номинальная ширина подшипника;
r - номинальная координата монтажа фаски.
Размеры, мм
Обозначение подшипников | d | D | В | r | Шарики | Масса, кг | С, Н | С0, Н | n*пред·10-3, мин-1 | |
Dw | Z | |||||||||
Сверхлегкая серия диаметров 9, нормальная серия ширин 1 | ||||||||||
1000093 | 3 | 8 | 3 | 0,3 | 1,59 | 6 | 0,0007 | 560 | 186 | 43 |
1000094 | 4 | 11 | 4 | 0,3 | 2 | 7 | 0,0025 | 950 | 340 | 40 |
1000095 | 5 | 13 | 4 | 0,4 | 2 | 8 | 0,0025 | 1 080 | 390 | 38 |
1000096 | 6 | 15 | 5 | 0,4 | 2,38 | 8 | 0,0040 | 1 470 | 555 | 38 |
1000097 | 7 | 17 | 5 | 0,5 | 3 | 7 | 0,0050 | 2 020 | 777 | 36 |
1000098 | 8 | 19 | 6 | 0,5 | 3 | 8 | 0,0080 | 2 240 | 880 | 34 |
1000099 | 9 | 20 | 6 | 0,5 | 3,5 | 7 | 0,0080 | 2 680 | 1 050 | 32., |
1000900 | 10 | 22 | 6 | 0,5 | 3,97 | 7 | 0,0090 | 3 340 | 1 350 | 30 |
1000901 | 12 | 24 | 6 | 0,5 | 3,97 | 7 | 0,010 | 3 390 | 1 350 | 28 |
1000902 | 15 | 28 | 7 | 0,5 | 3,18 | 12 | 0,017 | 3 480 | 1 480 | 22' |
1000903 | 17 | 30 | 7 | 0,5 | 3,5 | 11 | 0,018 | 3 640 | 1 650 | 20 |
1000904 | 20 | 37 | 9 | 0,5 | 5 | 10 | 0,035 | 6 550 | 3 040 | 18 |
1000905 | 25 | 42 | 9 | 0,5 | 5 | 12 | 0,042 | 7 320 | 3 680 | 15 |
1000906 | 30 | 47 | 9 | 0,5 | 5 | 13 | 0,049 | 7 590 | 3 990 | 13 |
1000907 | 35 | 55 | 10 | 1,0 | 5,95 | 13 | 0,086 | 10 400 | 5 650 | 11 |
1000908 | 40 | 62 | 12 | 1,0 | 6,35 | 14 | 0,11 | 12 200 | 6 920 | 10 |
1000909 | 45 | 68 | 12 | 1,0 | 7,14 | 13 | 0,15 | 14 300 | 8 130 | 9 |
1000911 | 55 | 80 | 13 | 1,5 | 6,35 | 18 | 0,19 | 16 000 | 10 000 | 7,5 |
1000912 | 60 | 85 | 13 | 1,5 | 7,14 | 19 | 0,26 | 16 400 | 10 600 | 6,3 |
1000915 | 75 | 105 | 16 | 1,5 | 8,73 | 18 | 0,38 | 24 300 | 16 800 | 5,6 |
Предусмотрены d = 1, 2, 80…340мм. | ||||||||||
Особолегкая серия диаметров 1, узкая серия ширин 7 | ||||||||||
7000101 | 12 | 28 | 7 | 0,5 | 4,76 | 8 | 0,018 | 5 070 | 2 240 | 26 |
7000102 | 15 | 32 | 8 | 0,5 | 4,76 | 8 | 0,025 | 5 590 | 2 500 | 22 |
7000103 | 17 | 35 | 8 | 0,5 | 5,16 | 9 | 0,036 | 6 050 | 2 800 | 19 |
7000104 | 20 | 42 | 8 | 0,5 | - | - | 0,06 | 7 020 | 3 400 | - |
7000105 | 25 | 47 | 8 | 0,5 | 5,56 | 11 | 0,06 | 7 610 | 4 000 | 14 |
7000106 | 30 | 55 | 9 | 0,5 | 5,56 | 14 | 0,10 | 11 200 | 5 850 | 12 |
7000107 | 35 | 62 | 9 | 0,5 | 5,56 | 15 | 0,11 | 12 400 | 6 950 | 10 |
7000108 | 40 | 68 | 9 | 0,5 | 6,35 | 16 | 0,13 | 13 300 | 7 800 | 9,5 |
7000109 | 45 | 75 | 10 | 1,0 | 6,35 | 17 | 0,17 | 15 600 | 9 300 | 9,0 |
7000110 | 50 | 80 | 10 | 1,0 | 6,35 | 18 | 0,18 | 16 300 | 10 000 | 8,5 |
7000111 | 55 | 90 | 11 | 1,0 | 7,14 | 17 | 0,28 | 17 000 | 11 700 | 7,5 |
7000112 | 60 | 95 | 11 | 1,0 | 7,14 | 18 | 0,29 | 18 600 | 12 400 | 6,7 |
7000113 | 65 | 100 | 11 | 1,0 | 7,14 | 19 | 0,34 | 19 000 | 13 100 | 6,3 |
7000114 | 70 | 110 | 13 | 1,0 | 7,94 | 18 | 0,45 | 22 200 | 15 300 | 6,0 |
Предусмотрены d = 75…280мм. | ||||||||||
Особолегкая серия диаметров 1, нормальная серия ширин 0 | ||||||||||
16 | 6 | 17 | 6 | 0,5 | - | - | 0,008 | 2 200 | 860 | - |
17 | 7 | 19 | 6 | 0,5 | 3,97 | 6 | 0,009 | 2 200 | 1 160 | 34 |
18 | 8 | 22 | 7 | 0,5 | 3,97 | 7 | 0,012 | 3 250 | 1 340 | 32 |
100 | 10 | 26 | 8 | 0,5 | 4,76 | 7 | 0,019 | 4 620 | 1 960 | 30 |
101 | 12 | 28 | 8 | 0,5 | 4,76 | 8 | 0,022 | 5 070 | 2 240 | 26 |
104 | 20 | 42 | 12 | 1,0 | 6,35 | 9 | 0,07 | 9 360 | 4 500 | 17 |
105 | 25 | 47 | 12 | 1,0 | 6,35 | 10 | 0,08 | 11 200 | 5 600 | 15 |
106 | 30 | 55 | 13 | 1,5 | 7,14 | 11 | 0,12 | 13 300 | 6 800 | 12 |
107 | 35 | 62 | 14 | 1,5 | 7,94 | 11 | 0,16 | L5 900 | 8 500 | 10 |
108 | 40 | 68 | 15 | 1,5 | 7,94 | 12 | 0,19 | 16 800 | 9 300 | 9,5 |
109 | 45 | 75 | 16 | 1,5 | 8,73 | 13 | 0,24 | 21 200 | 12 200 | 9,0 |
110 | 50 | 80 | 16 | 1,5 | 8,73 | 12 | 0,25 | 21 600 | 13 200 | 8,5 |
111 | 55 | 90 | 18 | 2,0 | 10,32 | 13 | 0,39 | 28 100 | 17 000 | 7,5 |
112 | 60 | 95 | 18 | 2,0 | 11,11 | 12 | 0,39 | 29 600 | 18 300 | 6,7 |
113 | 65 | 100 | 18 | 2,0 | 10,32 | 15 | 0,45 | 30 700 | 19 600 | 6,3 |
114 | 70 | 110 | 20 | 2,0 | 12.3 | 13 | 0.60 | 37 700 | 24 500 | 6,0 |
115 | 75 | 115 | 20 | 2,0 | 12,3 | 14 | 0,66 | 39 700 | 26 000 | 5,6 |
116 | 80 | 125 | 22 | 2,0 | 13,5 | 14 | 0,85 | 47 700 | 31 500 | 5,3 |
117 | 85 | 130 | 22 | 2,0 | 13.5 | 14 | 0т91 | 49 400 | 33 500 | 5,0 |
118 | 90 | 140 | 24 | 2,5 | 14,3 | 15 | 1,20 | 57 200 | 39 000 | 4,8 |
120 | 100 | 150 | 24 | 2,5 | 14,3 | 15 | 1,29 | 60 500 | 41 500 | 4,3 |
Предусмотрены d = 105…360мм. | ||||||||||
Легкая серия диаметров 2, узкая серия ширин 0 | ||||||||||
23 | 3 | 10 | 4 | 0.3 | 1,59 | 7 | 0,0016 | 490 | 217 | 40 |
24 | 4 | 13 | 5 | 0,4 | 2,38 | 6 | 0,003 | 900 | 415 | 38 |
25 | 5 | 16 | 5 | 0,5 | 3,18 | 6 | 0.003 | 1 480 | 740 | 36 |
26 | 6 | 19 | 6 | 0,5 | 3,97 | 6 | 0,008 | 2 170 | 1 160 | 32 |
27 | 7 | 22 | 7 | 0.5 | 3.97 | 7 | 0.013 | 3 250 | 1 350 | 30 |
29 | 9 | 26 | 8 | 1.0 | 4,76 | 7 | 0.019 | 4 620 | 1 960 | 26 |
200 | 10 | 30 | 9 | 1.0 | 5,95 | 6 | 0.030 | 5 900 | 2 650 | 24 |
201 | 12 | 32 | 10 | 1.0 | 5,56 | 7 | 0,037 | 6 890 | 3 100 | 22 |
202 | 15 | 35 | 11 | 1.0 | 5.95 | 8 | 0,045 | 7 800 | 3 550 | 19 |
203 | 17 | 40 | 12 | 1.0 | 7,14 | 7 | 0.060 | 9 560 | 4 500 | 17 |
204 | 20 | 47 | 14 | 1.5 | 7 94 | 8 | 0,10 | 12 700 | 6 200 | 15 |
205 | 25 | 52 | 15 | 1,5 | 7,94 | 9 | 0,12 | 14 000 | 6 950 | 12 |
206 | 30 | 62 | 16 | 1,5 | 9,53 | 9 | 0,20 | 19 500 | 10 000 | 10 |
207 | 35 | 72 | 17 | 2,0 | 11,11 | 9 | 0,29 | 25 500 | 13 700 | 9 |
208 | 40 | 80 | 18 | 2,0 | 12,7 | 9 | 0,36 | 32 000 | 17 800 | 8,5 |
209 | 45 | 85 | 19 | 2,0 | 12,7 | 9 | 0,41 | 33 200 | 18 600 | 7,5 |
210 | 50 | 90 | 20 | 2,0 | 12,7 | 10 | 0,47 | 35 100 | 19 800 | 7,0 |
211 | 55 | 100 | 21 | 2,5 | 14,29 | 10 | 0,60 | 43 600 | 25 000 | 6,5 |
212 | 60 | 110 | 22 | 2,5 | 15,88 | 10 | 0,80 | 52 000 | 31 000 | 6,0 |
213 | 65 | 120 | 23 | 2,5 | 16,67 | 10 | 0,98 | 56 000 | 34 000 | 5,5 |
214 | 70 | 125 | 24 | 2,5 | 17,46 | 10 | 1,08 | 61 800 | 37 500 | 5,0 |
215 | 75 | 130 | 25 | 2,5 | 17,46 | 11 | 1,18 | 66 300 | 41 000 | 4,5 |
216 | 80 | 140 | 26 | 3,0 | 19,05 | 10 | 1,40 | 70 200 | 45 000 | 4,0 |
217 | 85 | 150 | 28 | 3,0 | 19,84 | 11 | 1,80 | 83 200 | 53 000 | 4,0 |
218 | 90 | 160 | 30 | 3,0 | 22,23 | 10 | 2,2 | 95 600 | 62 000 | 3,5 |
220 | 100 | 180 | 34 | 3,5 | 25,4 | 10 | 3,2 | L24 000 | 79 000 | 3,0 |
Предусмотрены d = 105 … 280мм. | ||||||||||
Средняя серия диаметров 3, узкая серия ширин 0 | ||||||||||
34 | 4 | 16 | 5 | 0,5 | 3,18 | 6 | 0,005 | 1 450 | 740 | 35 |
35 | 5 | 19 | 6 | 0,5 | 3,97 | 6 | 0,008 | 2 190 | 1 160 | 32 |
300 | 10 | 35 | 11 | 1,0 | 7,14 | 6 | 0,05 | 8 060 | 3 750 | 20 |
301 | 12 | 37 | 12 | 1,5 | 7,94 | 6 | 0,06 | 9 750 | 4 650 | 19 |
302 | 15 | 42 | 13 | 1,5 | 7,94 | 7 | 0,08 | 11 400 | 5 400 | 17 |
303 | 17 | 47 | 14 | 1,5 | 9,53 | 6 | 0,11 | 13 500 | 6 650 | 16 |
304 | 20 | 52 | 15 | 2,0 | 9,53 | 7 | 0,14 | 15 900 | 7 800 | 13 |
305 | 25 | 62 | 17 | 2,0 | 11,51 | 7 | 0,23 | 22 500 | 11 400 | 11 |
306 | 30 | 72 | 19 | 2,0 | 12,3 | 8 | 0,34 | 28 100 | 14 600 | 9 |
307 | 35 | 80 | 21 | 2,5 | 14,29 | 7 | 0,44 | 33 200 | 18 000 | 8,5 |
308 | 40 | 90 | 23 | 2,5 | 15,08 | 8 | 0,63 | 41 000 | 22 400 | 7,5 |
309 | 45 | 100 | 25 | 2,5 | 17,46 | 8 | 0,83 | 52 700 | 30 000 | 6,7 |
310 | 50 | 110 | 27 | 3,0 | 19,05 | 8 | 1,08 | 61 800 | 36 000 | 6,3 |
311 | 55 | 120 | 29 | 3,0 | 20,64 | 8 | 1,35 | 71 500 | 41 500 | 5,6 |
312 | 60 | 130 | 31 | 3,5 | 22,23 | 8 | 1,70 | 81 900 | 48 000 | 5,0 |
313 | 65 | 140 | 33 | 3,5 | 23,81 | 8 | 2,11 | 92 300 | 56 000 | 4,8 |
314 | 70 | 150 | 35 | 3,5 | 25,4 | 8 | 2,60 | 104 000 | 63 000 | 4,5 |
315 | 75 | 160 | 37 | 3,5 | 26,99 | 8 | 3,10 | 112 000 | 72 500 | 4,3 |
316 | 80 | 170 | 39 | 3,5 | 28,58 | 8 | 3,60 | 124 000 | 80 000 | 3,8 |
317 | 85 | 180 | 41 | 4,0 | 30,16 | 8 | 4,30 | 133 000 | 90 000 | 3,6 |
318 | 90 | 190 | 43 | 4,0 | 31,75 | 8 | 5,10 | 143 000 | 99 000 | 3,4 |
320 | 100 | 215 | 47 | 4,0 | 36,51 | 8 | 7,00 | 174 000 | 132 000 | 3,0 |
Предусмотрены d = 110 … 150мм. | ||||||||||
Тяжелая серия диаметров 4, узкая серия ширин 0 | ||||||||||
403 | 17 | 62 | 17 | 2,0 | 12,7 | 6 | 0,27 | 22 900 | 11 800 | 12 |
405 | 25 | 80 | 21 | 2,5 | 16,67 | 6 | 0,5 | 36 400 | 20 400 | 9 |
406 | 30 | 90 | 23 | 2,5 | 19,05 | 6 | 0,72 | 47 000 | 26 700 | 8,5 |
407 | 35 | 100 | 25 | 2,5 | 20,64 | 6 | 0,93 | 55 300 | 31 000 | 7,0 |
408 | 40 | 110 | 27 | 3,0 | 22,23 | 6 | 1,20 | 63 700 | 36 500 | 6,7 |
409 | 45 | 120 | 29 | 3,0 | 23,02 | 7 | 1,52 | 76 100 | 45 500 | 6,0 |
410 | 50 | 130 | 31 | 3,5 | 25,4 | 7 | 1,91 | 87 100 | 52 000 | 5,3 |
411 | 55 | 140 | 33 | 3,5 | 26,99 | 7 | 2,3 | 100 000 | 63 000 | 5,0 |
412 | 60 | 150 | 35 | 3,5 | 28,58 | 7 | 2,8 | 108 000 | 70 000 | 4,8 |
413 | 65 | 160 | 37 | 3,5 | 30,16 | 7 | 3,4 | 119 000 | 78 000 | 4,5 |
414 | 70 | 180 | 42 | 4,0 | 34,93 | 7 | 5,3 | 143 000 | 105 000 | 3,8 |
416 | 80 | 200 | 48 | 4,0 | 38,1 | 7 | 7,0 | 163 000 | 125 000 | 3,4 |
417 | 85 | 210 | 52 | 5,0 | 39,69 | 7 | 8,0 | 174 000 | 135 000 | 3,2 |
418 | 90 | 225 | 54 | 5,0 | - | - | 11,4 | 186 000 | 146 000 | - |
* При пластичном смазочном материале.
Примечание. Масса подшипников рассчитана с сепаратором, штампованным из стального листа при плотности стали 7,85кг/дм3.
Пример обозначения шарикового радиального подшипника особолегкой серии диаметров 1, серии ширин 0 с d = 50мм, D = 80мм, В = 16мм:
Подшипник 110 ГОСТ 8338-75
127. Шарикоаые радиальные однорядные подшипники с защитными шайбами (по ГОСТ 7242—81)
Тип 60000

Тип 80000

Размеры, мм
Обозначения типоразмеров подшипников | d | D | В | r | Масса, кг | С, Н | С0, Н | nпред·10-3, мин-1 | |
С одной защитной шайбой | с двумя защитными шайбами | ||||||||
Серия диаметров 1 | |||||||||
60018 | 80018 | 8 | 22 | 7 | 0,5 | 0,012 | 3 250 | 1340 | 32 |
60104 | 80104 | 20 | 42 | 12 | 1,0 | 0,070 | 9 360 | 4500 | 17 |
60106 | 80106 | 30 | 55 | 13 | 1,5 | 0,120 | 13 300 | 6800 | 12 |
*Для подшипника 80018 nпред = 25 000. Предусмотрены d = 7, 9, 10…17, 25, 35…120мм.
Серия диаметров 2 | |||||||||
60024 | 80024 | 4 | 13 | 5 | 0,3 | 0,004 | 900 | 415 | 38 |
60025 | 80025 | 5 | 16 | 5 | 0,5 | 0,006 | 1 480 | 740 | 36 |
60026 | 80026 | 6 | 19 | 6 | 0,5 | 0,010 | 2 170 | 1 160 | 32 |
60027 | 80027 | 7 | 22 | 7 | 0,5 | 0,013 | 3 250 | 1 350 | 30 |
60029 | 80029 | 9 | 26 | 8 | 1,0 | 0,019 | 4 620 | 1 960 | 26 |
60200 | 80200 | 10 | 30 | 9 | 1,0 | 0,030 | '5 900 | 2 650 | 24 |
60201 | 80201 | 12 | 32 | 10 | 1,0 | 0,037 | 6 890 | 3 100 | 22 |
60202 | 80202 | 15 | 35 | 11 | 1,0 | 0,045 | 7 800 | 3 550 | 19 |
60203 | 80203 *1 | 17 | 40 | 12 | 1,0 | 0,065 | 9 560 | 4 500 | 17 |
60204 | 80204 | 20 | 47 | 14 | 1,5 | 0,106 | 12 700 | 6 200 | 15 |
60205 | 80205 | 25 | 52 | 15 | 1,5 | 0,12 | 14 000 | 6 950 | 12 |
60206 | 80206 *2 | 30 | 62 | 16 | 1,5 | 0,19 | 19 500 | 10 000 | 10 |
60207 | 80207 | 35 | 72 | 17 | 2,0 | 0,29 | 25 500 | 13 700 | 9,0 |
60208 | 80208 *3 | 40 | 80 | 18 | 2,0 | 0,36 | 32 000 | 17 800 | 8,5 |
60209 | 80209 | 45 | 85 | 19 | 2,0 | 0,41 | 33 200 | 18 600 | 7,5 |
60210 | 80210 | 50 | 90 | 20 | 2,0 | 0,46 | 35 100 | 19 800 | 7,0 |
60212 | 80212 | 60 | ПО | 22 | 2,5 | 0,80 | 52 000 | 31 000 | 6,0 |
60214 | 80214 | 70 | 125 | 24 | 2,5 | 1,06 | 61 800 | 37 500 | 5,0 |
60218 | 80218 | 90 | 160 | 30 | з,о | 2,20 | 95 600 | 62 000 | - |
60220 | 80220 | 100 | 180 | 34 | 3,5 | 3,16 | 124 000 | 79 000 | 3,4 |
*1 Для подшипника 80203 nпред = 12500мин-1.
*2 Для подшипника 80206 nпред = 8000мин-1.
*3 Для подшипника 80208 nпред = 6300мин-1.
Предусмотрены d = 3, 55, 65, 75, 80, 85, 110…140мм
Серия диаметров 3 | |||||||||
60302 | 80302 | 15 | 42 | 13 | 1,5 | 0,08 | 11 400 | 5 400 | 17 |
60303 | 80303 | 17 | 47 | 14 | 1,5 | 0,11 | 13 500 | 6 650 | 16 |
60305 | 80305 | 25 | 62 | 17 | 2,0 | 0,23 | 22 500 | 11 400 | 11 |
60306 | 80306 | 30 | 72 | 19 | 2,0 | 0,34 | 28 100 | 14 600 | 9 |
60307 | 80307 | 35 | 80 | 21 | 2,5 | 0,44 | 33 200 | 18 000 | 8,5 |
60308 | 80308 | 40 | 90 | 23 | 2,5 | 0,64 | 41 000 | 22 400 | 7,5 |
60309 | 80309 | 45 | 100 | 25 | 2,5 | 0,80 | 52 700 | 30 000 | 6,7 |
60310 | 80310 | 50 | 110 | 27 | 3,0 | 1,08 | 61 800 | 36 000 | 6,3 |
60311 | 80311 | 55 | 120 | 29 | 3,0 | 1,37 | 71 500 | 41 500 | 5,6 |
60314 | 80314 | 70 | 150 | 35 | 3,5 | 2,50 | 104 000 | 63 000 | 4,5 |
Примечание. Стандарт распространяется на шариковые радиальные подшипники защитными шайбами серий диаметров: 1; 2; 3 и 9.
Пример обозначения подшипника шарикового радиального однорядного, с одной защитной шайбой, легкой серии диаметров 2 с d = 6мм, D = 19мм, В = 6мм:
Подшипник 60026 ГОСТ 7242-81
128. Шариковые радиальные однорядные подшипники с уплотнением (по ГОСТ 8882—75)
Тип 160000

Тип 180000

Подшипники типа 160000 допускается изготовлять с кольцами от подшипников типа 180000.
Размеры, мм
Серия диаметров 2 и 5, серия ширин 0 | |||||||||||||||
Обозначения подшипников серий диаметров 2 и 5 для типов | d | D | В для серий диаметров | r | r1 | Масса, кг | С, Н серия 2 | С0, Н серия 2 | С, Н серия 5 | С0, Н серия 5 | n*пред·10-3, мин-1 | ||||
160000 | 180000 | 2 | 5 | ||||||||||||
160200 | 160500 | 180200 | 180500 | 10 | 30 | 9 | 14 | 1,0 | 0,5 | 0,05 | 5 900 | 2 650 | 5 900 | 2 650 | - |
160201 | 160501 | 180201 | 180501 | 12 | 32 | 10 | 14 | 1,0 | 0,5 | 0,06 | 6 890 | 3 110 | 6 890 | 3 100 | 15 |
160202 | 160502 | 180202 | 180502 | 15 | 35 | 11 | 14 | 1,0 | 0,5 | 0,06 | 7 800 | 3 550 | 7 800 | 3 550 | - |
160203 | 160503 | 180203 | 180503 | 17 | 40 | 12 | 16 | 1,0 | 1,0 | 0,08 | 9 560 | 4 500 | 9 560 | 4 500 | 12 |
160204 | 160504 | 180204 | 180504 | 20 | 47 | 14 | 18 | 1,5 | 1,5 | 0,14 | 12 700 | 6 200 | 12 700 | 6 200 | 10 |
160205 | 160505 | 180205 | 180505 | 25 | 52 | 15 | 18 | 1,5 | 1,5 | 0,15 | 14 000 | 6 950 | 14 000 | 6 950 | 8,5 |
160208 | 160508 | 180208 | 180508 | 40 | 80 | 18 | 23 | 2,0 | 2,0 | 0,45 | 32 000 | 17 800 | 32 000 | 17 800 | 5,6 |
Пример обозначения однорядного радиального шарикового с одним уплотнением подшипника серии диаметров 2 с d = 25мм, D = 52мм; В = 15мм:
Подшипник 160205 ГОСТ8882-75
129. Радиальные однорядные шарикоподшипники со стопорной канавкой на наружном кольце и кольца упорные по ГОСТ 2893—82

Упорное кольцо в свободном состоянии

* Размеры D2 и g относятся к упорному кольцу, смонтированному на подшипнике.
Размеры, мм
Обозначение подшипника | d | D | D1 | В | а | b | r | C, H | C0, Н | n*пред·10-3, мин-1 | Масса, кг | |||
наиб. | наим. | наиб. | наим. | наиб. | наим. | |||||||||
Серия диаметров 3 | ||||||||||||||
50305 | 25 | 62 | 59,61 | 59,11 | 17 | 3,28 | 3,07 | 2,2 | 1,9 | 2,0 | 22 500 | 11 400 | 11 | 0,23 |
50306 | 30 | 72 | 68,81 | 68,30 | 19 | 3,28 | 3,07 | 2,2 | 1,9 | 2,0 | 28 100 | 14 600 | 9 | 0,35 |
50307 | 35 | 80 | 76,81 | 76,30 | 21 | 3,28 | 3,07 | 2,2 | 1,9 | 2,5 | 33 200 | 18 000 | 8,5 | 0,43 |
50308 | 40 | 90 | 86,79 | 86,28 | 23 | 3,28 | 3,07 | 3,0 | 2,7 | 2,5 | 41 000 | 22 400 | 7,5 | 0,63 |
50309 | 45 | 100 | 96,80 | 96,29 | 25 | 3,28 | 3,07 | 3,0 | 2,7 | 2,5 | 52 700 | 30 000 | 6,7 | 0,79 |
50310 | 50 | 110 | 106,81 | 106,3.0 | 27 | 3,28 | 3,07 | 3,0 | 2,7 | 3,0 | 61 800 | 36 000 | 6,3 | 1,06 |
50311 | 55 | 120 | 115,21 | 114,71 | 29 | 4,06 | 3,86 | 3,4 | 3,1 | 3,0 | 71500 | 41 500 | 5,6 | 1,33 |
50312 | 60 | 130 | 125,22 | 124.71 | 31 | 4,06 | 3,86 | 3,4 | 3,1 | 3,5 | 81900 | 48 000 | 5,0 | 1,6 |
Серия диаметров 4 | ||||||||||||||
50406 | 30 | 90 | 86,79 | 86,28 | 23 | 3,28 | 3,07 | 3,0 | 2,7 | 2,5 | 47 000 | 26 700 | 8,5 | 0,72 |
50408 | 40 | 110 | 106,81 | 106,80 | 27 | 3,28 | 3,07 | 3,0 | 2,7 | 3,0 | 63 700 | 36 500 | 6,7 | 1,17 |
50410 | 50 | 130 | 125,22 | 124,71 | 31 | 4,06 | 3,86 | 3,4 | 3,1 | 3,5 | 87 100 | 52 000 | 5,3 | 1,88 |
50412 | 60 | 150 | 145,24 | 144,73 | 35 | 4,90 | 4,65 | 3,4 | 3,1 | 3,5 | 108 000 | 70 000 | 4,8 | 2,80 |
Упорные кольца в свободном состоянии
Размеры, мм
D | D1 | D2 | l | f | g | g1, (отклонение по H14) | |||
наиб. | наим. | наиб. | наим. | наиб. | наим. | ||||
Средняя серия диаметров 3, тяжелая серия диаметров 4 | |||||||||
62 | 67,7 | 59,0 | 58,4 | 4,04 | 3,89 | 1,7 | 1,60 | 4 | 2,6 |
72 | 78,6 | 68,2 | 67,6 | 4,85 | 4,70 | 1,7 | 1,60 | 5 | 3,6 |
80 | 86,6 | 76,2 | 75,6 | 4,85 | 4,70 | 1,7 | 1,60 | 5 | 3,6 |
90 | 96,5 | 86,2 | 85,6 | 4,85 | 4,70 | 2,46 | 2,36 | 5 | 3,6 |
100 | 106,5 | 96,2 | 95,4 | 4,85 | 4,70 | 2,46 | 2,36 | 5 | 3,6 |
110 | 116,5 | 106,2 | 105,4 | 4,85 | 4,70 | 2,46 | 2,36 | 5 | 3,6 |
120 | 129,7 | 114,6 | 113,8 | 7,21 | 7,06 | 2,82 | 2,72 | 7 | 5,3 |
130 | 139,7 | 124,6 | 123,8 | 7,21 | 7,06 | 2,82 | 2,72 | 7 | 5,3 |
150 | 159,7 | 144,5 | 143,3 | 7,21 | 7,06 | 2,82 | 2,72 | 7 | 5,3 |
Обозначение радиального однорядного шарикоподшипника со стопорной канавкой на наружном кольце серии 3 с d = 40мм, D = 90мм, В = 23мм:
Подшипник 50308 ГОСТ 2893-82
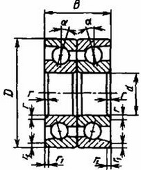
130. Радиальные сферические двухрядные шарикоподшипники (по ГОСТ 28428-90)
Тип 1000 с цилиндрическим отверстием

Тип 111000 с коническим отверстием

Размеры, мм
Обозначения подшипников типа | d | D | В | r | Шарики | C, H | C0, Н | n*пред·10-3, мин-1 | Масса*, кг | ||
1000 | 111000 | Dw | z | ||||||||
Серия диаметров 2, серия ширин 0 | |||||||||||
1005 | — | 5 | 19 | 6 | 0,5 | 3,18 | 8 | 2 150 | 540 | 32 | 0,009 |
1006 | 6 | 19 | 6 | 3,18 | 8 | 2 150 | 540 | 32 | 0,009 | ||
1007 | 7 | 22 | 7 | 3,18 | 10 | 2 650 | 655 | 30 | 0,014 | ||
1008 | 8 | 22 | 7 | 3,18 | 10 | 2 650 | 655 | 30 | 0,014 | ||
1009 | — | 9 | 26 | 8 | 1,0 | 3,97 | 9 | 3 900 | 930 | 26 | 0,022 |
1200 | 10 | 30 | 9 | 4,76 | 9 | 5 530 | 1 370 | 24 | 0,033 | ||
1201 | 12 | 32 | 10 | 4,76 | 10 | 5 590 | 1 500 | 22 | 0,040 | ||
1202 | 15 | 35 | 11 | 5,56 | 10 | 7 410 | 2 040 | 19 | 0,050 | ||
1203 | 17 | 40 | 12 | 5,56 | 12 | 7 930 | 2 420 | 18 | 0,073 | ||
1204 | 111204 | 20 | 47 | 14 | 1,5 | 6,35 | 12 | 9 950 | 3 180 | 15 | 0,12 |
1205 | 111205 | 25 | 52 | 15 | 6,14 | 12 | 12 100 | 4 000 | 13 | 0,14 | |
1206 | 111206 | 30 | 62 | 16 | 7,94 | 14 | 15 600 | 5 800 | 10 | 0,22 | |
1207 | 111207 | 36 | 72 | 17 | 2,0 | 7,94 | 16 | 15 900 | 6 600 | 9 | 0,32 |
1208 | 111208 | 40 | 80 | 18 | 8,73 | 17 | 19 000 | 8 550 | 8,5 | 0,42 | |
1209 | 111209 | 45 | 85 | 19 | 9,53 | 16 | 21 600 | 9 600 | 7,5 | 0,47 | |
1210 | 111210 | 50 | 90 | 20 | 9,53 | 18 | 22 900 | 10 800 | 7,0 | 0,53 | |
1211 | 111211 | 55 | 100 | 21 | 2,5 | 10,32 | 19 | 26 500 | 13 300 | 6,3 | 0,71 |
1212 | 111212 | 60 | 110 | 22 | 11,11 | 19 | 30 200 | 15 500 | 5,6 | 0,90 | |
1213 | 111213 | 65 | 120 | 23 | 11,11 | 21 | 31 200 | 17 200 | 5,3 | 1,15 | |
1214 | 111214 | 70 | 125 | 24 | 11,9 | 20 | 34 500 | 18 700 | 5,0 | 1,26 | |
1215 | 111215 | 75 | 130 | 25 | 12,7 | 20 | 39 000 | 21 500 | 4,8 | 1,36 | |
1216 | 111216 | 80 | 140 | 26 | 3,0 | 12,7 | 22 | 39 700 | 23 500 | 4,5 | 1,67 |
1217 | 111217 | 85 | 150 | 28 | 14,29 | 21 | 48 800 | 28 500 | 4,0 | 2,10 | |
1218 | 111218 | 90 | 160 | 30 | 15,86 | 19 | 57 200 | 32 000 | 3,8 | 2,52 | |
1220 | 111220 | 100 | 180 | 34 | 3,5 | 17,46 | 20 | 68 900 | 40 500 | 3,4 | 3,70 |
1222 | 111222 | 110 | 200 | 38 | 19,84 | 20 | 88 400 | 52 000 | 3,0 | 5,15 | |
Серия диаметров 5 | |||||||||||
1506 | 111506 | 30 | 62 | 20 | 1,5 | 7,94 | 14 | 15 300 | 5 700 | 9,5 | 0,26 |
1507 | 111507 | 35 | 72 | 23 | 2,0 | 9,53 | 14 | 21 600 | 8 200 | 8,5 | 0,40 |
1508 | 111508 | 40 | 80 | 23 | 2,0 | 9,53 | 16 | 22 500 | 9 450 | 7,5 | 0,50 |
1509 | 111509 | 45 | 85 | 23 | 2,0 | 9,53 | 18 | 23 400 | 10 700 | 7,0 | 0,54 |
1510 | 111510 | 50 | 90 | 23 | 2,0 | 9,53 | 19 | 23 400 | И 500 | 6,3 | 0,59 |
1511 | 111511 | 55 | 100 | 25 | 2,5 | - | - | 26 500 | 13 400 | — | 0,81 |
1512 | П1512 | 60 | 110 | 28 | 2,5 | - | - | 33 800 | 16 600 | — | 1,09 |
1513 | 111513 | 65 | 120 | 31 | 2,5 | - | - | 43 600 | 21 600 | — | 1,46 |
Серия диаметров 3 | |||||||||||
1300 | — | 10 | 35 | 11 | 1,0 | 5,56 | 9 | 7 250 | 2 000 | 18 | 0,06 |
1301 | 12 | 37 | 12 | 1,5 | 6,35 | 9 | 9 360 | 2 600 | 18 | 0,07 | |
1302 | 15 | 42 | 13 | 6,35 | 10 | 9 560 | 2 800 | 17 | 0,09 | ||
1303 | 17 | 47 | 14 | 7,14 | 11 | 12 500 | 3 660 | 14 | 0,13 | ||
1304 | 111304 | 20 | 52 | 15 | 2,0 | 7,14 | 12 | 12 500 | 3 660 | 12 | 0,16 |
1305 | 111305 | 25 | 62 | 17 | 8,73 | 12 | 17 800 | 6 000 | 9,5 | 0;26 | |
1306 | 111306 | 30 | 72 | 19 | 9,53 | 13 | 21 200 | 7 700 | 9,0 | 0.39 | |
1307 | 111307 | 35 | 80 | 21 | 2,5 | 10,32 | 14 | 25 100 | 9 800 | 7,5 | 0.51 |
1308 | 111308 | 40 | 90 | 23 | 11,11 | 15 | 29 600 | 12 200 | 6,7 | 0.71 | |
1309 | 111309 | 45 | 100 | 25 | 12,7 | 15 | 37 700 | 15 900 | 6,3 | 0,96 | |
1310 | 111310 | 50 | 110 | 27 | 3,0 | 14,29 | 13 | 43 600 | 17 500 | 5,6 | 1,21 |
1311 | 111311 | 55 | 120 | 29 | 15,08 | 15 | 50 700 | 22 500 | 5,0 | 1,58 | |
1312 | 111312 | 60 | 130 | 31 | 3,5 | 15,88 | 16 | 57 200 | 26 500 | 4,5 | 1,96 |
1313 | 111313 | 65 | 140 | 33 | 16,67 | 16 | 61 800 | 29 500 | 4,3 | 2,5 | |
1314 | 111314 | 70 | 150 | 35 | 18,26 | 16 | 74 100 | 35 500 | 4,0 | 3,0 | |
1315 | 111315 | 75 | 160 | 37 | 19,05 | 16 | 79 300 | 38 500 | 3,8 | 3,6 | |
1316 | 111316 | 80 | 170 | 39 | 20,64 | 15 | 88 400 | 42 000 | 3,6 | 4,2 | |
1317 | 111317 | 85 | 180 | 41 | 4,0 | 21,43 | 16 | 97 500 | 48 500 | 3,4 | 5,0i |
1318 | 111318 | 90 | 190 | 43 | 23,81 | 15 | 117 000 | 56 000 | 3,2 | 5,8 | |
1320 | 111320 | 100 | 215 | 47 | 26,99 | 15 | 133 600 | 64 000 | 2,8 | 8,3 | |
Серия диаметров 6 | |||||||||||
1605 | 111605 | 25 | 62 | 24 | 2,0 | 10,32 | 11 | 24 200 | 7 500 | 9,5 | 0,34 |
1606 | 111606 | 30 | 72 | 27 | 11,91 | 11 | 31 200 | 10 000 | 8,5 | 0,50 | |
1607 | 111607 | 35 | 80 | 31 | 2,5 | 13,49 | 11 | 39 700 | 12 900 | 7,0 | 0,68 |
1608 | 111608 | 40 | 90 | 33 | 14,29 | 12 | 44 900 | 15 700 | 6,3 | 0,93 | |
1609 | 111609 | 45 | 100 | 36 | 15,08 | 12 | 54 000 | 19 400 | 5,6 | 1,23 | |
1610 | 111610 | 50 | 110 | 40 | 3,0 | 17,46 | 12 | 63 700 | 23 600 | 5,3 | 1,61 |
1611 | 111611 | 55 | 120 | 43 | 19,05 | 12 | 76 100 | 28 000 | 4,5 | 2,10 | |
1612 | 111612 | 60 | 130 | 46 | 3,5 | 20,64 | 12 | 87 100 | 33 000 | 4,0 | 2,60 |
1613 | 111613 | 65 | 140 | 48 | 21,43 | 13 | 95 600 | 38 500 | 3,6 | 3,20 | |
1614 | 111614 | 70 | 150 | 51 | 23,02 | 13 | 111 000 | 44 500 | 3,2 | 3,92 | |
1616 | 111616 | 80 | 170 | 58 | 26,99 | 13 | 135 000 | 58 000 | 2,6 | 6,10 | |
Пример обозначения двухрядного сферического радиального шарикового подшипника типа 1000, серии диаметров 3 с d = 35мм, D = 80мм, В = 21мм:
Подшипник 1307 ГОСТ 28428-90
* Масса приведена для подшипников типа 1000.
Продолжение табл. 130
Обозначения подшипников типа | Шарики | Расчетные параметры | |||||||
е | Y | Y0 | X | ||||||
1000 | 111000 | Dw | z | Fa/Fr ≤ e | Fa/Fr > e | Fa/Fr ≤ e | Fa/Fr > e | ||
Легкая серия диаметров 2 | |||||||||
1005 | — | 3,18 | 8 | 0,34 | 1,87 | 2,90 | 1,96 | 1,0 | 0,65 |
1006 | 3,18 | 8 | 0,34 | 1,87 | 2,90 | 1,96 | |||
1007 | 3,18 | 10 | 0,33 | 1,89 | 2,92 | 1,98 | |||
1008 | 3,18 | 10 | 0,33 | 1,89 | 2,92 | 1,98 | |||
1009 | — | 3,97 | 9 | 0,33 | 1,87 | 2,89 | 1,95 | ||
1200 | 4,76 | 9 | 0,32 | 1,96 | 3,03 | 2,05 | |||
1201 | 4,76 | 10 | 0,33 | 1,88 | 2,92 | 1,97 | |||
1202 | 5,56 | 10 | 0,33 | 1,90 | 2,94 | 1,99 | |||
1203 | 5,56 | 12 | 0,31 | 2,05 | 3,18 | 2,15 | |||
1204 | 111204 | 6,35 | 12 | 0,27 | 2,31 | 3,57 | 2,42 | ||
1205 | I11205 | 6,14 | 12 | 0,27 | 2,32 | 3,60 | 2,44 | ||
1206 | 111206 | 7,94 | 14 | 0,24 | 2,58 | 3,99 | 2,70 | ||
1207 | 111207 | 7,94 | 16 | 0,23 | 2,74 | 4,24 | 2,87 | ||
1208 | 111208 | 8,73 | 17 | 0,22 | 2,87 | 4,44 | 3,01 | ||
1209 | 111209 | 9,53 | 16 | 0,21 | 2,97 | 4,60 | 3,11 | ||
1210 | 111210 | 9,53 | 18 | 0,21 | 3,13 | 4,85 | 3,28 | ||
1211 | 111211 | 10,32 | 19 | 0,20 | 3,20 | 5,00 | 3,39 | ||
1212 | 111212 | 11,11 | 19 | 0,19 | 3,40 | 5,27 | 3,57 | ||
1213 | 111213 | 11,11 | 21 | 0,17 | 3,70 | 5,73 | 3,88 | ||
1214 | 111214 | 11,9 | 20 | 0,18 | 3,50 | 5,43 | 3,68 | ||
1215 | 111215 | 12,7 | 20 | 0,18 | 3,60 | 5,57 | 3,77 | ||
1216 | 111216 | 12,7 | 22 | 0,16 | 3,90 | 6,10 | 4,13 | ||
1217 | 111217 | 14,29 | 21 | 0,17 | 3,69 | 5,71 | 3,87 | ||
1218 | 111218 | 15,86 | 19 | 0,17 | 3,76 | 5,82 | 3,94 | ||
1220 | 111220 | 17,46 | 20 | 0,17 | 3,63 | 5,63 | 3,81 | ||
1222 | 111222 | 19,84 | 20 | 0,17 | 3,64 | 5,64 | 3,82 | ||
Серия диаметров 5 | |||||||||
1506 | 111506 | 7,94 | 14 | 0,39 | 1,59 | 2,47 | 1,68 | 1,0 | 0,65 |
1507 | 111507 | 9,53 | 14 | 0,37 | 1,69 | 2,62 | 1,77 | ||
1508 | 111508 | 9.53 | 16 | 0,33 | 1,90 | 2,94 | 1,99 | ||
1509 | 111509 | 9.53 | 18 | 0,31 | 2,06 | 3,19 | 2,16 | ||
1510 | 111510 | 9.53 | 19 | 0,29 | 2,20 | 3,41 | 2,31 | ||
1511 | 111511 | - | - | - | - | - | - | ||
1512 | 111512 | - | - | - | - | - | - | ||
1513 | 111513 | - | - | - | - | - | - | ||
Серия диаметров 3 | |||||||||
1300 | — | 5,56 | 9 | 0,33 | 1,91 | 2,96 | 2 | 1,0 | 0,65 |
1301 | 6,35 | 9 | 0,35 | 1,81 | 2,80 | 1,90 | |||
1302 | 6,35 | 10 | 0,33 | 1,89 | 2,92 | 1,98 | |||
1303 | 7,14 | 11 | 0,33 | 1,92 | 2,97 | 2,01 | |||
1304 | 111304 | 7,14 | 12 | 0,29 | 2,17 | 3,35 | 2,27 | ||
1305 | 111305 | 8,73 | 12 | 0,28 | 2,26 | 3,49 | 2,36 | ||
1306 | 111306 | 9,53 | 13 | 0,26 | 2,46 | 3,80 | 2,58 | ||
1307 | 111307 | 10,32 | 14 | 0,25 | 2,57 | 3,98 | 2,69 | ||
1308 | 111308 | 11,11 | 15 | 0,23 | 2,61 | 4,05 | 2,74 | ||
1309 | 111309 | 12,7 | 15 | 0,25 | 2,54 | 3,93 | 2,66 | ||
1310 | 111310 | 14,29 | 13 | 0,24 | 2,68 | 4,14 | 2,80 | ||
1311 | 111311 | 15,08 | 15 | 0,23 | 2,70 | 4,17 | 2,82 | ||
1312 | 111312 | 15,88 | 16 | 0,23 | 2,80 | 4,33 | 2,93 | ||
1313 | 111313 | 16,67 | 16 | 0,23 | 2,79 | 4,31 | 2,92 | ||
1314 | 111314 | 18,26 | 16 | 0,22 | 2,81 | 4,35 | 2,95 | ||
1315 | 111315 | 19,05 | 16 | 0,22 | 2,84 | 4,39 | 2,97 | ||
1316 | 111316 | 20,64 | 15 | 0,22 | 2,92 | 4,52 | 3,06 | ||
1317 | 111317 | 21,43 | 16 | 0,22 | 2,90 | 4,49 | 3.04 | ||
1318 | 111318 | 23,81 | 15 | 0,22 | 2,82 | 4,36 | 2,95 | ||
1320 | 111320 | 26,99 | 15 | 0,24 | 2,67 | 4,14 | 2,80 | ||
Серия диаметров 6 | |||||||||
1605 | 111605 | 10,32 | 11 | 0,47 | 1.34 | 2,07 | 1,40 | 1,0 | 0,65 |
1606 | 111606 | 11,91 | 11 | 0,44 | 1.43 | 2,22 | 1,50 | ||
1607 | 111607 | 13,49 | 11 | 0,46 | 1,36 | 2,11 | 1,43 | ||
1608 | 111608 | 14,29 | 12 | 0,43 | 1,46 | 2.25 | 1.52 | ||
1609 | 111609 | 15,08 | 12 | 0,42 | 1,51 | 2,33 | 1.58 | ||
1610 | 111610 | 17,46 | 12 | 0,43 | 1,48 | 2,29 | 1,55 | ||
1611 | 111611 | 19,05 | 12 | 0,41 | 1,52 | 2,35 | 1.60 | ||
1612 | 111612 | 20,64 | 12 | 0,41 | 1,56 | 2,41 | 1.63 | ||
1613 | 111613 | 21,43 | 13 | 0,38 | 1,65 | 2,55 | 1.73 | ||
1614 | 111614 | 23,02 | 13 | 0,38 | 1,68 | 2,59 | 1,76 | ||
1616 | 111616 | 26,99 | 13 | 0,37 | 1,68 | 2,61 | 1,76 | ||
131. Роликовые радиальные подшипники с короткими цилиндрическими роликами (по ГОСТ 8328—75)

Размеры, мм
Обозначения подшипников типа | d | D | В | r | r1 | Масса, кг ≈ | С, Н | С0, Н | n*пред·10-3, мин-1 | |
2100 | 32100 | |||||||||
Серия диаметров 1, серия ширин 0 | ||||||||||
2106 | 32106 | 30 | 55 | 13 | 1,5 | 0,8 | 0,14 | 25 100 | 14 600 | 12 |
2109 | 32109 | 45 | 75 | 16 | 1,5 | 1,0 | 0,31 | 31 400 | 17 600 | 9 |
2110 | 32110 | 50 | 80 | 16 | 1,5 | 1,0 | 0,33 | 30 800 | 17 600 | 8,5 |
2111 | 32111 | 55 | 90 | 17 | 2,0 | 1,5 | 0,45 | 34 700 | 23 600 | 1,5 |
2113 | 32113 | 65 | 100 | 18 | 2,0 | 1,5 | 0,51 | 38 000 | 26 500 | 6,3 |
2114 | 32114 | 70 | 110 | 20 | 2,0 | 1,5 | 0,70 | 56 100 | 36 000 | 6,0 |
2116 | 32116 | 80 | 125 | 22 | 2,0 | 1,5 | 1,00 | 66 000 | 44 000 | 5,3 |
2118 | 32118 | 90 | 140 | 24 | 2,5 | 2,0 | 1,35 | 80 900 | 56 000 | 4,8 |
Предусмотрены d = 20, 95…500мм.
Обозначения подшипников типа | d | D | В | r | r1 | Масса, кг ≈ | С, Н | С0, Н | n*пред·10-3, мин-1 | |||||
2200 | 12200 | 32200 | 42200 | 92200 | 102200 | |||||||||
Серия диаметров 2, серия ширин 0 | ||||||||||||||
2202 | 12202 | 32202 | 42202 | — | — | 15 | 35 | 11 | 1,0 | 0,5 | 0,07 | 12 500 | 6 400 | 19 |
2203 | 12203 | 32203 | 42203 | 92203 | 102203 | 17 | 40 | 12 | 1,0 | 0,5 | 0,07 | 17 200 | 7 100 | 17 |
2204 | 12204 | 32204 | 42204 | 92204 | 102204 | 20 | 47 | 14 | 1,5 | 1,0 | 0,11 | 25 100 | 12 600 | 15 |
2205 | 12205 | 32205 | 42205 | 92205 | 102205 | 25 | 52 | 15 | 1,5 | 1,0 | 0,13 | 28 600 | 15 200 | 12 |
2206 | 12206 | 32206 | 42206 | 92206 | 102206 | 30 | 62 | 16 | 1,5 | 1,0 | 0,20 | 38 000 | 19 600 | 10 |
2207 | 12207 | 32207 | 42207 | 92207 | 102207 | 35 | 72 | 17 | 2,0 | 1,0 | 0,29 | 48 400 | 26 500 | 9 |
2208 | 12208 | 32208 | 42208 | 92208 | 102208 | 40 | 80 | 18 | 2,0 | 2,0 | 0,37 | 53 900 | 29 500 | 8,5 |
2209 | 12209 | 32209 | 42209 | 92209 | 102209 | 45 | 85 | 19 | 2,0 | 2,0 | 0,43 | 60 500 | 35 000 | 7,5 |
2210 | 12210 | 32210 | 42210 | 92210 | 102210 | 50 | 90 | 20 | 2,0 | 2,0 | 0,48 | 64 400 | 37 500 | 7,0 |
2211 | 12211 | 32211 | 42211 | 92211 | 102211 | 55 | 100 | 21 | 2,5 | 2,0 | 0,64 | 84 200 | 49 000 | 6,3 |
2212 | 12212 | 32212 | 42212 | 92212 | 102212 | 60 | 110 | 22 | 2,5 | 2,5 | 0,82 | 93 500 | 53 500 | 5,6 |
2213 | 12213 | 32213 | 42213 | 92213 | 102213 | 65 | 120 | 23 | 2,5 | 2,5 | 1,05 | 106 000 | 66 500 | 5,3 |
2214 | 12214 | 32214 | 42214 | 92214 | 102214 | 70 | 125 | 24 | 2,5 | 2,5 | 1,15 | 119 000 | 71 000 | 5,0 |
2215 | 12215 | 32215 | 42215 | 92215 | 102215 | 75 | 130 | 25 | 2,5 | 2,5 | 1,35 | 130 000 | 81 500 | 4,8 |
2216 | 12216 | 32216 | 42216 | 92216 | 102216 | 80 | 140 | 26 | 3,0 | 3,0 | 1,50 | 138 000 | 87 000 | 4,5 |
2217 | 12217 | 32217 | 42217 | 92217 | — | 85 | 150 | 28 | 3,0 | 3,0 | 1,90 | 165 000 | 108 000 | 4,3 |
2218 | 12218 | 32218 | 42218 | 92218 | — | 90 | 160 | 30 | 3,0 | 3,0 | 2,30 | 183 000 | 120 000 | 3,8 |
2220 | 12220 | 32220 | 42220 | 92220 | — | 100 | 180 | 34 | 3,5 | 3,5 | 3,40 | 251 000 | 170 000 | 3,4 |
* Повышенная грузоподъемность.
Предусмотрены d = 105…320мм.
Обозначения подшипников типа | d | D | В | b | r = r1 | Масса, кг ≈ | С*, Н | С0*, Н | nпред·10-3, мин-1 | ||||||||||||||||||||||
2300 | 12300 | 32300 | 42300 | 62300 | 92300 | 102300 | |||||||||||||||||||||||||
Серия диаметров 3, серия ширин 0 |
| ||||||||||||||||||||||||||||||
23OJ | 12305 | 32305 | 42305 | 62305 | 92305 | 102305 | 25 | 62 | 17 | 4 | 2,0 | 0,24 | 40200 | 23200 | 9,5 |
| |||||||||||||||
2306 | 12306 | 32306 | 42306 | 62306 | 92306 | 102306 | 30 | 72 | 19 | 5 | 2,0 | 0,36 | 51200 | 26000 | 8,5 |
| |||||||||||||||
2307 | 12307 | 32307 | 42307 | 62307 | 92307 | 102307 | 35 | 80 | 21 | 6 | 2,5 | 0,48 | 64400 | 35000 | 8,0 |
| |||||||||||||||
2308 | 12308 | 32308 | 42308 | 62308 | 92308 | 102308 | 40 | 90 | 23 | 7 | 2,5 | 0,66 | 80900 | 44500 | 6,7 |
| |||||||||||||||
2309 | 12309 | 32309 | 42309 | 62309 | 92309 | 102309 | 45 | 100 | 25 | 7 | 2,5 | 0,87 | 99000 | 56000 | 6,3 |
| |||||||||||||||
2310 | 12310 | 32310 | 42310 | 62310 | 92310 | 102310 | 50 | 110 | 27 | 8 | 3,0 | 1,15 | 110000 | 70500 | 5,6 |
| |||||||||||||||
2311 | 12311 | 32311 | 42311 | 62311 | 92311 | 102311 | 55 | 120 | 29 | 9 | 3,0 | 1,45 | 138000 | 87500 | 5,0 |
| |||||||||||||||
2312 | 12312 | 32312 | 42312 | 62312 | 92312 | 102312 | 60 | 130 | 31 | 9 | 3,5 | 1,85 | 151000 | 98000 | 4,8 |
| |||||||||||||||
2313 | 12313 | 32313 | 42313 | 62313 | 92313 | 102313 | 65 | 140 | 33 | 10 | 3,5 | 2,25 | 183000 | 107000 | 4,5 |
| |||||||||||||||
2314 | 12314 | 32314 | 42314 | 62314 | 92314 | 102314 | 70 | 150 | 35 | 10 | 3,5 | 2,75 | 205000 | 124000 | 4,0 |
| |||||||||||||||
2315 | 12315 | 32315 | 42315 | 62315 | 92315 | 102315 | 75 | 160 | 37 | 11 | 3,5 | 3,25 | 242000 | 149000 | 3,8 |
| |||||||||||||||
2316 | 12316 | 32316 | 42316 | 62316 | 92316 | 102316 | 80 | 170 | 39 | 11 | 3,5 | 3,9 | 260000 | 163000 | 3,6 |
| |||||||||||||||
2317 | 12317 | 32317 | 42317 | 62317 | 92317 | 102317 | 85 | 180 | 41 | 12 | 4,0 | 4,5 | 297 000 | 190 000 | 3,4 |
| |||||||||||||||
2318 | 12318 | 32318 | 42318 | 62318 | 92318 | 102318 | 90 | 190 | 43 | 12 | 4,0 | 5,4 | 319 000 | 206 000 | 3,2 |
| |||||||||||||||
2320 | 12320 | 32320 | 42320 | 62320 | 92320 | — | 100 | 215 | 47 | 13 | 4,0 | 7,7 | 391 000 | 250 000 | 2,8 |
| |||||||||||||||
2322 | 12322 | 32322 | 42322 | 62322 | 92322 | — | 110 | 240 | 50 | 14 | 4,0 | 10,5 | 468 000 | 310 000 | 2,4 |
| |||||||||||||||
* Повышенная грузоподъемность.
Предусмотрены d = 15, 17, 120…300мм.
Обозначения подшипников типа | d | D | В | b | r = r1 | Масса, кг ≈ | С*, Н | С0*, Н | nпред·10-3, мин-1 | ||||||
2600 | 12600 | 32600 | 42600 | 52600 | 62600 | 92600 | |||||||||
Серия диаметров 6, серия ширин 0 | |||||||||||||||
2605 | 12605 | 32605 | 42605 | — | — | 92605 | 23 | 62 | 24 | — | 2,0 | 0,34 | 56 100 | 34 500 | 9 |
2606 | 12606 | 32606 | 42606 | — | — | 92606 | 30 | 72 | 27 | — | 2,0 | 0,50 | 73 700 | 46 500 | 8 |
2607 | 12607 | 32607 | 42607 | — | — | 92607 | 35 | 80 | 31 | — | 2,5 | 0,70 | 91 300 | 61 000 | 7 |
2608 | 12608 | 32608 | 42608 | — | — | 92608 | 40 | 90 | 33 | — | 2,5 | 0,96 | 112 000 | 75 000 | 6,3 |
2609 | 12609 | 32609 | 42609 | — | — | 92609 | 45 | 100 | 36 | — | 2,5 | 1,25 | 138 000 | 95 000 | 5,6 |
2610 | 12610 | 32610 | 42610 | 52610 | 62610 | 92610 | 50 | 110 | 40 | 8 | 3,0 | 1,70 | 161 000 | 114 000 | 5,0 |
2611 | 12611 | 32611 | 42611 | 52611 | 62611 | 92611 | 55 | 120 | 43 | 9 | 3,0 | 2,1 | 201 000 | 143 000 | 4,8 |
2612 | 12612 | 32612 | 42612 | 52612 | 62612 | 92612 | 60 | 130 | 46 | 9 | 3,5 | 2,7 | 224 000 | 160 000 | 4,3 |
2613 | 12613 | 32613 | 42613 | 52613 | 62613 | 92613 | 65 | 140 | 48 | 10 | 3,5 | 3,25 | 251 000 | 180 000 | 4,0 |
2614 | 12614 | 32614 | 42614 | 52614 | 62614 | 92614 | 70 | 150 | 51 | 10 | 3,5 | 3,95 | 275 000 | 200 000 | 3,8 |
2615 | 12615 | 32615 | 42615 | 52615 | 62615 | 92615 | 75 | 160 | 55 | 11 | 3,5 | 4,85 | 330 000 | 245 000 | 3,4 |
2616 | 12616 | 32616 | 42616 | S2616 | 1 62616 | 92616 | 80 | 170 | 58 | 11 | 3.5 | 5,85 | 358 000 | 265 000 | 3,2 |
2617 | 12617 | 32617 | 42617 | 52617 | 62617 | 92617 | 85 | 180 | 60 | 12 | 4,0 | 6,60 | — | — | 3,0 |
2618 | 12618 | 32618 | 42618 | 52618 | 62618 | 92618 | 90 | 190 | 64 | 12 | 4,0 | 7,90 | 440 000 | 325 000 | 2,8 |
2620 | 12620 | 32620 | 42620 | 52620 | 62620 | 92620 | 100 | 215 | 73 | 13 | 4,0 | 12,00 | 583 000 | 450 000 | 2,4 |
* Повышенная грузоподъемность.
Предусмотрены d = 20, 110…300мм.
Обозначения подшипников типа | d | D | В | b | r = r1 | Масса, кг ≈ | С*, Н | С0*, Н | nпред·10-3, мин-1 | |||||
2400 | 32400 | 42400 | 62400 | 92400 | 102400 | |||||||||
Серия диаметров 4, серия ширин 0 | ||||||||||||||
2408 | 32408 | 42408 | 62408 | 92408 | 102408 | 40 | 110 | 27 | 8 | 3 | 1,30 | 96 800 | 57 000 | — |
2409 | 32409 | 42409 | 62409 | 92409 | 102409 | 45 | 120 | 29 | 8 | 3 | 1,65 | 106 000 | 69 500 | 5,6 |
2410 | 32410 | 42410 | 62410 | 92410 | 102410 | 50 | 130 | 31 | 9 | 3,5 | 2,0 | 130 000 | 86 500 | 5,0 |
2411 | 32411 | 42411 | 62411 | 92411 | 102411 | 55 | 140 | 33 | 10 | 3,5 | 2,5 | 142 000 | 86 500 | 4,8 |
2412 | 32412 | 42412 | 62412 | 92412 | 102412 | 60 | 150 | 35 | 10 | 3,5 | 3,0 | 168 000 | 106 000 | 4,3 |
2413 | 32413 | 42413 | 62413 | 92413 | 102413 | 65 | 160 | 37 | 11 | 3,5 | 3,6 | 183 000 | 127 000 | 4,0 |
2414 | 32414 | 42414 | 62414 | 92414 | 102414 | 70 | 180 | 42 | 12 | 4 | 5,25 | 229 000 | 163 000 | 3,6 |
2415 | 32415 | 42415 | 62415 | 92415 | 102415 | 75 | 190 | 45 | 13 | 4 | 6,25 | 264 000 | 173 000 | 3,4 |
2416 | 32416 | 42416 | 62416 | 92416 | 102416 | 80 | 200 | 48 | 13 | 4 | 7,3 | 303 000 | 200 000 | 3,2 |
2417 | 32417 | 42417 | 62417 | 92417 | — | 85 | 210 | 52 | 14 | 5 | 8,7 | 319 000 | 228 000 | 3,0 |
2418 | 32418 | 42418 | 62418 | 92418 | — | 90 | 225 | 54 | 14 | 5 | 10,5 | 385 000 | 260 000 | 2,8 |
2420 | 32420 | 42420 | 62420 | 92420 | — | 100 | 250 | 58 | 16 | 5 | 14,0 | 429 000 | 320 000 | 2,4 |
Предусмотрены d = 30, 35, 105…240мм.
Пример обозначения подшипника типа 32100 с d = 30мм; D = 55мм; В = 13мм:
Подшипник 32106 ГОСТ8328-75
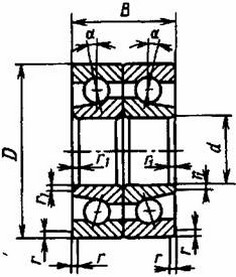
132. Роликовые радиальные сферические двухрядные подшипники (по ГОСТ 5721-75)
Тип 3000 с цилиндрическим отверстием

Тип 113000 с коническим отверстием

Размеры, мм
Обозначение подшипников типа | d | D | В | r | Масса, кг ≈ | С, Н | С0, Н | nпред·10-3, мин-1 | |
3000 | 113000 | ||||||||
Серия диаметров 5, серия ширин 0 | |||||||||
3508 | 113508 | 40 | 80 | 23 | 2,0 | 0,58 | 57 000 | 33 300 | 4,5 |
3509 | 113509 | 45 | 85 | 23 | 2,0 | 0,60 | 64 000 | 35 000 | 4,3 |
3514 | 113514 | 70 | 125 | 31 | 2,5 | 1,67 | 132 000 | 93 800 | 2,6 |
3516 | 113516 | 80 | 140 | 33 | 3,0 | 2,20 | 160 000 | 118 000 | 2,2 |
3518 | 113518 | 90 | 160 | 40 | 3,0 | 3,55 | 216 000 | 159 000 | 1,9 |
3520 | 113520 | 100 | 180 | 46 | 3,5 | 5,20 | 275 000 | 212 000 | 1,8 |
3522 | 113522 | 110 | 200 | 53 | 3,5 | 7,50 | 355 000 | 276 000 | 1,7 |
3524 | 113524 | 120 | 215 | 58 | 3,5 | 9,30 | 415 000 | 325 000 | 1,6 |
Предусмотрены d = 130…400мм. | |||||||||
Серия диаметров 6, серия ширин 0 | |||||||||
3608 | 113608 | 40 | 90 | 33 | 2,5 | 1,03 | 95 000 | 64 900 | 4,3 |
3609 | 113609 | 45 | 100 | 36 | 2,5 | 1,4 | 114 000 | 74 800 | 3,8 |
3610 | 113610 | 50 | 110 | 40 | 3,0 | 1,9 | 150 000 | 101000 | 3,4 |
3611 | 113611 | 55 | 120 | 43 | 3,0 | 2,4 | 170 000 | 118 000 | 3,0 |
3612 | 113612 | 60 | 130 | 46 | 3,5 | 3,1 | 196 000 | 128 000 | 2,8 |
3613 | 113613 | 65 | 140 | 48 | 3,5 | 3,7 | 220 000 | 142 000 | 2,4 |
3614 | 113614 | 70 | 150 | 51 | 3,5 | 4,35 | 270 000 | 181 000 | 2,2 |
3615 | 113615 | 75 | 160 | 55 | 3,5 | 5,4 | 300 000 | 207 000 | 2,0 |
3616 | 113616 | 80 | 170 | 58 | 3,5 | 6,6 | 325 000 | 227 000 | 1,9 |
3617 | 113617 | 85 | 180 | 60 | 4,0 | 7,4 | 365 000 | 270 000 | 1.8 |
3618 | 113618 | 90 | 190 | 64 | 4,0 | 9,3 | 400 000 | 300 000 | 1,8 |
3620 | 113620 | 100 | 215 | 73 | 4,0 | 13,0 | 520 000 | 410 000 | 1,7 |
3622 | 113622 | 110 | 240 | 80 | 4,0 | 18,2 | 610 000 | 470 000 | 1,5 |
Предусмотрены d = 120…400мм.
Обозначение подшипников типа | Расчетные параметры | ||||||
е | Y | Y0 | X | ||||
3000 | 113000 | Fa/Fr ≤ e | Fa/Fr > e | Fa/Fr ≤ e | Fa/Fr > e | ||
Серия диаметров 5, серия ширин 0 | |||||||
3508 | 113508 | 0,321 | 2,1 | 3,13 | 2,06 | 1,0 | 0,67 |
3509 | 113509 | 0,293 | 2,26 | 3,36 | 2,21 | ||
3514 | 113514 | 0,270 | 2,51 | 3,74 | 2,46 | ||
3516 | 113516 | 0,25 | 2,68 | 4 | 2,63 | ||
3518 | 113518 | 0,27 | 2,54 | 3,77 | 2,48 | ||
3520 | 113520 | 0,27 | 2,47 | 3,68 | 2,41 | ||
3522 | 113522 | 0,28 | 2,39 | 3,55 | 2,33 | ||
3524 | 113524 | 0,29 | 2,38 | 3,51 | 2,31 | ||
Серия диаметров 5, серия ширин 0 | |||||||
3608 | 113608 | 0,42 | 1,61 | 2,4 | 1,58 | 1,0 | 0,67 |
3609 | 113609 | 0,41 | 1,67 | 2,5 | 1,62 | ||
3610 | 113610 | 0,42 | 1,62 | 2,42 | 1,59 | ||
3611 | 113611 | 0,41 | 1,66 | 2,47 | 1,62 | ||
3612 | 113612 | 0,4 | 1,68 | 2,5 | 1,64 | ||
3613 | 113613 | 0,37 | 1,8 | 2,69 | 1,77 | ||
3614 | 113614 | 0,37 | 1,81 | 2,7 | 1,78 | ||
3615 | 113615 | 0,38 | 1,78 | 2,65 | 1,74 | ||
3616 | 113616 | 0,36 | 1,88 | 2,81 | 1,84 | ||
3617 | 113617 | 0,37 | 1,84 | 2,74 | 1,8 | ||
3618 | 113618 | 0,37 | 1,83 | 2,72 | 1,79 | ||
3620 | 113620 | 0,37 | 1,81 | 2,7 | 1,77 | ||
3622 | 113622 | 0,37 | 1,83 | 2,72 | 1,79 | ||
Пример обозначения двухрядного сферического радиального роликового подшипника средней серии диаметров 6, широкой серии ширин 0 с d = 110мм, D = 240мм, В = 80мм:
Подшипник 3622 ГОСТ 5721- 75
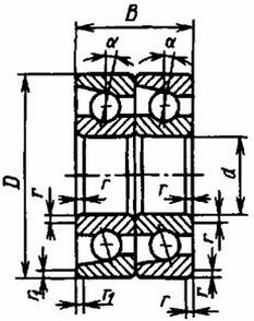
133. Шариковые двухрядные подшипники с закрепительными втулками (по ГОСТ 8545-75)
Тип 11000

Закрепительная втулка

Обозначения подшипников для серии диаметров | d1 | d | D | В для серии диаметров | r | Шарики | C, H | C0, Н | nпред·10-3, мин-1 | Масса, кг | |||
2; 3 | 5; 6 | 2; 3 | 5; 6 | Dw | z | ||||||||
Серия диаметров 2 и 5, серия ширин 0 | |||||||||||||
11204 | — | 20 | 25 | 52 | 15 | — | 1,5 | 6,14 | 12 | 12 100 | 4 000 | 13,0 | 0,2 |
11205 | 11505 | 25 | 30 | 62 | 16 | 20 | 1,5 | 7,94 | 14 | 15 600 | 5 800 | 10,0 | 0,3 |
11206 | 11506 | 30 | 35 | 72 | 17 | 23 | 2,0 | 7,94 | 16 | 15 900 | 6 600 | 9,0 | 0,4 |
11207 | 11507 | 35 | 40 | 80 | 18 | 23 | 2,0 | 8,73 | 17 | 19 000 | 8 550 | 8,5 | 0,6 |
11208 | 11508 | 40 | 45 | 85 | 19 | 23 | 2,0 | 9,53 | 16 | 21 600 | 9 600 | 7,5 | 0,7 |
11209 | 11509 | 45 | 50 | 90 | 20 | 23 | 2,0 | 9,53 | 18 | 22 900 | 10 800 | 7,0 | 0,8 |
11210 | 11510 | 50 | 55 | 100 | 21 | 25 | 2,5 | 10,32 | 19 | 26 500 | 13 300 | 6,3 | 1,0 |
11211* | — | 55 | 60 | 110 | 22 | — | 2,5 | 11,11 | 19 | 30 200 | 15 500 | 5,6 | 1,2 |
11212* | 11512 | 60 | 65 | 120 | 23 | 31 | 2,5 | 11,11 | 21 | 31 200 | 17 200 | 5,3 | 1,6 |
11213 | — | 65 | 75 | 130 | 25 | — | 2,5 | 12,70 | 20 | 39 000 | 21 500 | 4,8 | 2,2 |
11214 | 11514 | 70 | 80 | 140 | 26 | 33 | 3,0 | 12,70 | 22 | 39 700 | 23 500 | 4,5 | 2,7 |
11215 | — | 75 | 85 | 150 | 28 | — | 3,0 | 14,29 | 21 | 48 800 | 28 500 | 4,0 | 3,3 |
11216* | 11516 | 80 | 90 | 160 | 30 | 40 | 3,0 | 15,86 | 19 | 57 200 | 32 000 | 3,8 | 3,9 |
11217 | — | 85 | 95 | 170 | 32 | — | 3,5 | — | — | 63 700 | 37 000 | 3,6 | 4,6 |
11218 | 11518 | 90 | 100 | 180 | 34 | 46 | 3,5 | 17,46 | 20 | 68 900 | 40 500 | 3,4 | 5,5 |
11220 | — | 100 | 110 | 200 | 38 | — | 3,5 | 19,84 | 20 | 74 100 | 44 000 | 3,0 | 7,4 |
Серия диаметров 3 и 6, серия ширин 0 | |||||||||||||
11305 | 11605 | 25 | 30 | 72 | 19 | 27 | 2,0 | 9,53 | 13 | 21 200 | 7 700 | 9,0 | 0,5 |
11306 | 11606 | 30 | 35 | 80 | 21 | 31 | 2,5 | 10,32 | 14 | 25 100 | 9 800 | 7,5 | 0,67 |
11307 | 11607 | 35 | 40 | 90 | 23 | 33 | 2,5 | 11,11 | 15 | 29 600 | 12 200 | 6,7 | 0,91 |
11308 | 11608 | 40 | 45 | 100 | 25 | 36 | 2,5 | 12,70 | 15 | 37 700 | 15 900 | 6,3 | 1,19 |
11309 | 11609 | 45 | 50 | 110 | 27 | 40 | 3,0 | 14,29 | 13 | 43 600 | 17 500 | 5,6 | 1,49 |
11310 | 11610 | 50 | 55 | 120 | 29 | 43 | 3,0 | 15,08 | 15 | 50 700 | 22 500 | 5,0 | 1,91 |
11311* | 11611 | 55 | 60 | 130 | 31 | 46 | 3,5 | 15,88 | 16 | 57 200 | 26 500 | 4,5 | 2,3 |
11312 | 11612 | 60 | 65 | 140 | 33 | 48 | 3,5 | 16,67 | 16 | 61 800 | 29 500 | 4,3 | 2,9 |
11313 | — | 65 | 75 | 160 | 37 | — | 3,5 | 19,05 | 16 | 79 300 | 38 500 | 3,8 | 4,4 |
11314 | 11614 | 70 | 85 | 170 | 39 | 58 | 3,5 | 20,64 | 15 | 88 400 | 42 000 | 3,6 | 5,2 |
11316 | 11616 | 80 | 90 | 190 | 43 | 64 | 4,0 | 23,81 | 15 | 117 000 | 56 000 | 3,2 | 7,1 |
11318 | 11618 | 90 | 100 | 215 | 47 | 73 | 4,0 | 26,99 | 15 | 143 000 | 72 000 | 2,8 | 10,0 |
11320 | — | 100 | 110 | 240 | 50 | — | 4,0 | 28,58 | 17 | 163 000 | 91 500 | 2,0 | 14,18 |
Обозначения подшипников типа | Шарики | Расчетные параметры | ||||||
е | Y | Y0 | X | |||||
Dw, мм | Z | Fa/Fr ≤ e | Fa/Fr > e | Fa/Fr ≤ e | Fa/Fr > e | |||
Легкая серия диаметров 2 | ||||||||
11204 | 6,14 | 12 | 0,27 | 2,32 | 3,60 | 2,41 | 1,0 | 0,65 |
11205 | 7,94 | 14 | 0,24 | 2,58 | 3,99 | 2,7 | ||
11206 | 7,94 | 16 | 0,23 | 2,74 | 4,24 | 2,87 | ||
11207 | 8,73 | 17 | 0,22 | 2,87 | 4,44 | 3,01 | ||
11208 | 9,53 | 16 | 0,21 | 2,97 | 4,60 | 3,11 | ||
11209 | 9,53 | 18 | 0,21 | 3,13 | 4,85 | 3,28 | ||
11210 | 10,32 | 19 | 0,2 | 3,20 | 5 | 3,39 | ||
11211 | 11,11 | 19 | 0.19 | 3,40 | 5,27 | 3,57 | ||
11212 | 11,11 | 21 | 0,17 | 3,70 | 5,73 | 3,88 | ||
11213 | 12,70 | 20 | 0,18 | 3,60 | 5,57 | 3,77 | ||
11214 | 12,70 | 22 | 0,16 | 3,90 | 6,10 | 4,13 | ||
11215 | 14,29 | 21 | 0,17 | 3,69 | 5,71 | 3,87 | ||
11216 | 15,86 | 19 | 0,17 | 3,76 | 5,82 | 3,94 | ||
11217 | - | - | - | - | - | - | ||
11218 | 17,46 | 20 | - | - | - | - | ||
11220 | 19,84 | 20 | - | - | - | - | ||
Серия диаметров 5 | ||||||||
11505 | 6,14 | 12 | 0,39 | 1,59 | 2,47 | 1,67 | 1,0 | 0,65 |
11506 | 7,94 | 16 | 0,37 | 1,69 | 2,62 | 1,77 | ||
11507 | 8,73 | 17 | 0,33 | 1,90 | 2,94 | 1,99 | ||
11508 | 9,53 | 16 | 0,31 | 2,06 | 3,19 | 2,16 | ||
11509 | 9,53 | 18 | 0,29 | 2,20 | 3,41 | 2,31 | ||
11510 | 10,32 | 19 | — | — | — | — | ||
11512 | 11,11 | 21 | — | — | — | — | ||
11514 | 12,70 | 22 | 0,25 | 2,49 | 3,85 | 2,61 | ||
11516 | 15,86 | 19 | — | — | — | — | ||
11518 | 17,46 | 20 | — | — | — | — | ||
Серия диаметров 3 | ||||||||
11305 | 9,53 | 13 | 0,26 | 2,46 | 3,80 | 2,58 | 1,0 | 0,65 |
11306 | 10,32 | 14 | 0,25 | 2,57 | 3,98 | 2,69 | ||
11307 | 11,11 | 15 | 0,23 | 2,61 | 4,05 | 2,74 | ||
11308 | 12,70 | 15 | 0,25 | 2,54 | 3,93 | 2,66 | ||
11309 | 14,29 | 13 | 0,24 | 2,68 | 4,14 | 2,80 | ||
11310 | 15,08 | 15 | 0,23 | 2,70 | 4,17 | 2,82 | ||
11311 | 15,88 | 16 | 0,23 | 2,80 | 4,33 | 2,93 | ||
11312 | 16,67 | 16 | 0,23 | 2,79 | 4,31 | 2,92 | ||
11313 | 19,05 | 16 | 0,22 | 2,84 | 4,39 | 2,97 | ||
11314 | 20,64 | 15 | 0,22 | 2,92 | 4,52 | 3,06 | ||
11316 | 23,81 | 15 | 0,22 | 2,82 | 4,36 | 2,95 | ||
11318 | 26,99 | 15 | 0,24 | 2,67 | 4,14 | 2,80 | ||
11320 | 28,58 | 17 | 0,22 | 2,83 | 4,38 | 2,97 | ||
Серия диаметров 6 | ||||||||
11605 | 9,53 | 13 | 0,44 | 1,43 | 2,22 | 1,50 | 1,0 | 0,65 |
11606 | 10,32 | 14 | 0,46 | 1,36 | 2,11 | 1,43 | ||
11607 | 11,11 | 15 | 0,43 | 1,46 | 2,25 | 1,52 | ||
11608 | 12,7 | 15 | 0,42 | 1,51 | 2,33 | 1,58 | ||
11609 | 14,29 | 13 | 0,43 | 1,48 | 2,29 | 1,55 | ||
11610 | 15,08 | 15 | 0,41 | 1,52 | 2,36 | 1,60 | ||
11611 | 15,88 | 16 | 0,41 | 1,56 | 2,41 | 1,63 | ||
11612 | 16,67 | 16 | 0,38 | 1,65 | 2,55 | 1,73 | ||
11614 | 20,64 | 15 | 0,37 | 1,68 | 2,61 | 5,76 | ||
11616 | 23,81 | 15 | — | — | — | — | ||
11618 | 26,99 | 15 | — | — | — | — | ||
Пример обозначения двухрядного сферического радиального шарикового подшипника широкой серии диаметров 2 с d1 = 30мм, d = 35мм, D = 72мм, В = 17мм
Подшипник 11206 ГОСТ 8545-75
134. Роликовые двухрядные подшипники с закрепительными втулками (по ГОСТ 8545—75)
Тип 13000

Закрепительная втулка приведена в табл. 133.
Размеры, мм
Обозначение подшипников | d1 | d | D | В | r | C, H | C0, Н | nпред·10-3, мин-1 | Масса, кг |
Серия диаметров 5, серия ширин 0 | |||||||||
13514 | 70 | 80 | 140 | 33 | 3,0 | 160 000 | 118 000 | 2,7 | 3,2 |
13516 | 80 | 90 | 160 | 40 | 3,0 | 216 000 | 159 000 | 1,9 | 4,8 |
13518 | 90 | 100 | 180 | 46 | 3,5 | 275 000 | 212 000 | 1,8 | 6,7 |
13520 | 100 | 110 | 200 | 53 | 3,5 | 355 000 | 275 000 | 1,7 | 9,6 |
13522 | 110 | 120 | 215 | 58 | 3,5 | 415 000 | 325 000 | 1,6 | 11,3 |
Серия диаметров 6, серия ширин 0 | |||||||||
13611 | 55 | 60 | 130 | 46 | 3,5 | 196 000 | 128 000 | 2,8 | 3,5 |
13613 | 65 | 75 | 160 | 55 | 3,5 | 300 000 | 207 000 | 2,0 | 6,3 |
13614 | 70 | 80 | 170 | 58 | 3,5 | 325 000 | 227 000 | 1,9 | 7,7 |
13616 | 80 | 90 | 190 | 64 | 4,0 | — | — | — | 10,3 |
13618 | 90 | 100 | 215 | 73 | 4,0 | 520 000 | 410 000 | 1,7 | 15,0 |
13620 | 100 | 110 | 240 | 80 | 4,0 | 640 000 | 470 000 | 1,5 | 20,3 |
13622 | 110 | 120 | 260 | 86 | 4,0 | 735 000 | 565 000 | 1,3 | 26,7 |
Обозначение подшипников | Расчетные параметры | |||||
е | Y | Y0 | X | |||
Fa/Fr ≤ e | Fa/Fr > e | Fa/Fr ≤ e | Fa/Fr > e | |||
Серия диаметров 5, серия ширин 0 | ||||||
13514 | 0,25 | 2,68 | 4,00 | 2,63 | 1,0 | 0,67 |
13516 | 0,27 | 2,54 | 3,77 | 2,48 | ||
13518 | 0,27 | 2,47 | 3,68 | 2,41 | ||
13520 | 0,28 | 2,39 | 3,55 | 2,33 | ||
13522 | 0,29 | 2,36 | 3,51 | 2,31 | ||
Серия диаметров 6, серия ширин 0 | ||||||
13611 | 0,40 | 1,68 | 2,50 | 1,64 | 1,0 | 0,67 |
13613 | - | - | - | - | ||
13614 | 0,36 | 1,88 | 2,81 | 1,84 | ||
13616 | - | - | - | - | ||
13618 | 0,37 | 1,81 | 2,70 | 1,77 | ||
13620 | 0,37 | 1,83 | 2,72 | 1,79 | ||
13622 | 0,36 | 1,85 | 2,76 | 1,81 | ||
Пример обозначения двухрядного сферического радиального роликового подшипника средней серии диаметров 6 с d = 65мм; D = 160мм; В = 55мм:
Подшипник 13613 ГОСТ8545-75
135. Роликовые радиальные игольчатые подшипники (по ГОСТ 4657—82)
Тип 74000

Тип 24000

Диаметр отверстия для смазки, мм:
2 для D до 30мм,
3 для D св. 30 до 180мм.
По согласованию с заказчиком допускаются отверстия для смазки на внутреннем кольце.
На наружной поверхности наружного кольца (посередине) допускается кольцевая проточка
Обозначения подшипников типа | d | Fw | D | B | r | C, H | C0, Н | nпред·10-3, мин-1 | Масса, кг | |||||||||||||||||
Номинал | Отклонения | тип | ||||||||||||||||||||||||
74000 | 24000 | верхн. | нижн. | 74000 | 24000 | |||||||||||||||||||||
Серия диаметров 9, серия ширин 4 | ||||||||||||||||||||||||||
4074904 | 4024904 | 20 | 25 | +0,033 | +0,020 | 37 | 17 | 0,5 | 19 000 | 15 300 | 6,3 | 0,08 | 0,06 | |||||||||||||
4074905 | 4024905 | 25 | 30 | +0,033 | +0,020 | 42 | 17 | 0,5 | 21 000 | 17 000 | 5,0 | 0,1 | 0,07 | |||||||||||||
4074918 | 4024918 | 90 | 105 | +0,058 | +0,036 | 125 | 35 | 2,0 | 104 000 | 124 000 | 2,0 | 1,57 | 0,94 | |||||||||||||
4074920 | 4024920 | 100 | 115 | +0,058 | +0,036 | 140 | 40 | 2,0 | 106 000 | 132 000 | 1,6 | 2,31 | 1,51 | |||||||||||||
Предусмотрены d = 110 ... 160мм. | ||||||||||||||||||||||||||
Серия диаметров 1, серия ширин 4 | ||||||||||||||||||||||||||
4074103 | 4024103 | 17 | 24 | +0,033 | +0,020 | 35 | 18 | 0,5 | 19 300 | 10 600 | 6,7 | 0,10 | 0,07 | |||||||||||||
4074104 | 4024104 | 20 | 28 | - | - | 42 | 22 | 1.0 | 22000 | 17900 | 6,3 | 0,18 | 0,12 | |||||||||||||
4074105 | 4024105 | 25 | 34 | +0,041 | +0,025 | 47 | 22 | 1,0 | 25 000 | 21 700 | 5,0 | 0,20 | 0,13 | |||||||||||||
4074106 | 4024106 | 30 | 40 | 55 | 25 | 1,5 | 30 000 | 29 500 | 4,5 | 0,31 | 0,20 | |||||||||||||||
4074107 | 4024107 | 35 | 46 | 62 | 27 | 1,5 | 37 200 | 38 500 | 4,0 | 0,42 | 0,27 | |||||||||||||||
4074108 | 4024108 | 40 | 52 | +0,049 | +0,030 | 68 | 28 | 1,5 | 40 800 | 43 500 | 3,4 | 0,50 | 0,31 | |||||||||||||
4074109 | 4024109 | 45 | 58 | 75 | 30 | 42 000 | 54 500 | 3,2 | 0,63 | 0,39 | ||||||||||||||||
4074110 | 4024110 | 50 | 62 | 80 | 30 | 45 000 | 58 000 | 2.6 | 0,69 | 0,44 | ||||||||||||||||
4074111 | 4024111 | 55 | 70 | +0,049 | +0.030 | 90 | 35 | 2,0 | 59 000 | 72 000 | 2.6 | 0,97 | 0,60 | |||||||||||||
4074112 | 4024112 | 60 | 75 | 95 | 62 000 | 77 500 | 2,2 | 1,13 | 0,69 | |||||||||||||||||
4074113 | 4024113 | 65 | 80 | 100 | 65 000 | 82 500 | 2,0 | 1.19 | 0,73 | |||||||||||||||||
4074114 | 4024114 | 70 | 88 | +0,058 | +0,036 | 110 | 40 | 2,0 | 89 000 | 117 000 | 1,8 | 1,74 | 1,04 | |||||||||||||
4074115 | 4024115 | 75 | 92 | 115 | 40 | 92 000 | 122 000 | 1,6 | 1,80 | 1,10 | ||||||||||||||||
4074116 | 4024116 | 80 | 100 | 125 | 45 | 97 500 | 132 000 | 1,3 | 2,46 | 1,46 | ||||||||||||||||
Пример обозначения роликового радиального игольчатого подшипника типа 74000 серии диаметров 1, серии ширин 4 с d = 50мм, D= 80мм, В = 30мм:
Подшипник 4074110 ГОСТ 4657-82
ГОСТ 4657—82 предусматривает и другие типы подшипников.
Технические требования. Предельные отклонения диаметра дорожек качения на валу подшипников типа 24000 — по h5.
Твердость поверхности дорожек качения на валу под подшипники типа 24000 должна быть не менее 61HRCэ.
Параметры шероховатости поверхности дорожек качения на валу под подшипники типа 24000 должны быть Ra ≤ 0,32мкм.
Съемные детали комплектных и некомплектных подшипников могут быть невзаимозаменяемыми.
Подшипники типа 24000 поставляют с невзаимозаменяемыми деталями в разобранном виде. Чтобы детали не перепутать, на коробках с роликами и на наружной цилиндрической поверхности колец наносят номер комплекта. Кольца и комплект упакованных роликов вкладывают в одну общую коробку.
136. Шариковые радиальпо-упорпые однорядные подшипники (по ГОСТ 831—75)
Типы 36000, 46000, 66000

а* — угол контакта, равный углу между линией действия результирующей нагрузки на тело качения и плоскостью, перпендикулярной оси подшипника.
Для подшипников типа 36000К6 угол а = 15°; типа 46000 - а = 26°; типа 66000 - а = 36 °.
Размеры, мм
Обозначения подшипников типа | d | D | b = Т | r | r1 | Шарики | Масса, кг | C, H | C0, Н | nпред·10-3, мин-1 | ||
36000 | 46000 | Dw | Z | |||||||||
Серия диаметров 1, серия ширин 0 | ||||||||||||
36100К6 | - | 10 | 26 | 8 | 0,5 | 0,3 | 4,76 | 9 | 0,020 | 3900 | 2200 | 34 |
36101К6 | 12 | 28 | 4,76 | 9 | 0,025 | 4250 | 2450 | 34 | ||||
36103К6 | 17 | 35 | 10 | 0,5 | 0,3 | 5,16 | 11 | 0,04 | 5700 | 3600 | 28 | |
36104К6 | 20 | 42 | 12 | 1,0 | 0.5 | 6,35 | 11 | 0,07 | 7800 | 5200 | 22 | |
— | 46106 | 30 | 55 | 13 | 1,5 | 0,8 | 7,14 | 18 | 0,12 | 14 500 | 7 880 | 11 |
46108 | 40 | 68 | 15 | 7,94 | 16 | 0,20 | 18 900 | 11 100 | 10 | |||
46109 | 45 | 75 | 16 | 8,31 | 16 | 0,25 | 22 500 | 13 400 | 9 | |||
4611! | 55 | 90 | 18 | 2,0 | 1,0 | 10,30 | 18 | 0,40 | 32 600 | 21 100 | 7,5 | |
46112 | 60 | 95 | 11,11 | 18 | 0,42 | 37 400 | 24 500 | 7,0 | ||||
46114 | 70 | 110 | 20 | 12,30 | 19 | 0,62 | 46 100 | 31 700 | 6,3 | |||
46115 | 75 | 115 | 12,30 | 20 | 0,66 | 47 300 | 33 400 | 5,6 | ||||
46116 | 80 | 125 | 22 | 13,49 | 20 | 0,88 | 56 000 | 40 100 | 5,3 | |||
46117 | 85 | 130 | 13,49 | 21 | 0,92 | 57 400 | 42 100 | 5,0 | ||||
46118 | 90 | 140 | 24 | 2,5 | 1,2 | 14,29 | 21 | 1,19 | 63 500 | 47 200 | 4,8 | |
46120 | 100 | 150 | 15,08 | 22 | 1,29 | 71 500 | 55 100 | 4,3 | ||||
Обозначения подшипников типа | d | D | b = T | r | r1 | Шарики | С, Н, для типа | С0, Н, для типа | nпред·10-3, мин-1 | Масса, кг | |||||
36000 | 46000 | Dw | Z | 36000 | 46000 | 36000 | 46000 | 36000 | 46000 | ||||||
Серия диаметров 2, серия ширин 0 | |||||||||||||||
36201К6 | — | 12 | 32 | 10 | 1,0 | 0,5 | 5,50 | 9 | 5500 | — | 3350 | — | 24 | — | 0,04 |
36202К6 | 46202 | 15 | 35 | 11 | 5,95 | 10 | 6000 | 8520 | 3750 | 3650 | 24 | 18 | 0,05 | ||
36203К6 | 46203 | 17 | 40 | 12 | 7,10 | 10 | 9200 | — | 5750 | — | 18 | — | 0,07 | ||
36204К6 | 46204 | 20 | 47 | 14 | 1,5 | 0,8 | 7,94 | 11 | 11 900 | 14 800 | 7 450 | 7 640 | 16 | 15 | 0,110 |
36205К6 | 46205 | 25 | 52 | 15 | 7,94 | 12 | 12 400 | 15 700 | 8 000 | 8 340 | 13 | 11 | 0,135 | ||
36206К6 | 46206 | 30 | 62 | 16 | 9,53 | 12 | 16 300 | 21 900 | 12 000 | 12 000 | 11 | 10 | 0,200 | ||
36 207 Кб | 46207 | 35 | 72 | 17 | 2,0 | 1,0 | 11,11 | 12 | 20 000 | 29 000 | 15 300 | 16 400 | 10 | 9 | 0,29 |
36208К6 | 46208 | 40 | 80 | 18 | 12,70 | 12 | 27 000 | 36 800 | 20 400 | 21 400 | 9,5 | 8 | 0,37 | ||
36209К6 | 46209 | 45 | 85 | 19 | 12,70 | 13 | 32 000 | 38 700 | 25 500 | 23 100 | 9,0 | 7 | 0,42 | ||
362ЮК6 | 46210 | 50 | 90 | 20 | 12,70 | 14 | 35 500 | 40 600 | 28 500 | 24 900 | 8,0 | 6,3 | 0,48 | ||
36211 Кб | 46211 | 55 | 100 | 21 | 2,5 | 1,2 | 14,29 | 14 | 41 500 | 50 300 | 34 500 | 31 500 | 7,0 | 6,3 | 0,63 |
36212К6 | 46212 | 60 | 110 | 22 | 15,88 | 14 | 50 000 | 60 800 | 42 500 | 38 800 | 6,3 | 5,6 | 0,80 | ||
36213К6 | 46213 | 65 | 120 | 23 | 16,67 | 15 | — | 69 400 | — | 45 900 | — | 5,3 | 1,00 | ||
36214К6 | 46214 | 70 | 125 | 24 | 17,46 | 15 | 60 000 | — | 52 000 | — | 6,0 | — | 1,10 | ||
362I5K6 | 46215 | 75 | 130 | 25 | 17,46 | 16 | 73 500 | 78 400 | 65 500 | 53 800 | — | 5,0 | 1,21 | ||
36216К6 | 46216 | 80 | 140 | 26 | 3,0 | 1,5 | 19,05 | 15 | 73 500 | 87 900 | 65 500 | 60 000 | 5,6 | 4,3 | 1,48 |
36217К6 | 46217 | 85 | 150 | 28 | 19,84 | 15 | 81 500 | 94 400 | 76 500 | 65 100 | 5,0 | 4,0 | 1,84 | ||
36218К6 | 46218 | 90 | 160 | 30 | 22,23 | 14 | 90 000 | 111 000 | 85 000 | 76 200 | 4,8 | 3,6 | 2,26 | ||
36220К6 | 46220 | 100 | 180 | 34 | 3,5 | 2,0 | 25,44 | 15 | - | 148 000 | - | 107000 | - | 3,2 | 3,32 |
Продолжение табл. 136
Обозначения подшипников | d | D | b = Т | r | r1 | Шарики | С, Н | С0, Н | nпред·10-3, мин-1 | Масса, кг | |
Dw | z | ||||||||||
Серия диаметров 3, серия ширин 0 | |||||||||||
46305 | 25 | 62 | 17 | 2,0 | 1,0 | 11,51 | 10 | 26 900 | 14 600 | 9 | 0,25 |
46306 | 30 | 72 | 19 | 12,30 | 11 | 32 600 | 18 300 | 8 | 0,38 | ||
46307 | 35 | 80 | 21 | 2,5 | 1,2 | 14,29 | 11 | 42 600 | 24 700 | 7,3 | 0,51 |
46308 | 40 | 90 | 23 | 15,08 | 12 | 50 000 | 30 100 | 6,3 | 0,69 | ||
46309 | 45 | 100 | 25 | 17,46 | 11 | 61 400 | 37 000 | 5,6 | 0,93 | ||
46310 | 50 | 110 | 27 | 3,0 | 1,5 | 19,09 | 11 | 71 800 | 44 000 | 5,0 | 1,20 |
46312 | 60 | 130 | 31 | 3,5 | 2,0 | 22,23 | 12 | 100 000 | 65 300 | 4,3 | 1,94 |
46313 | 65 | 140 | 33 | 23,81 | 12 | 113 000 | 75 000 | 4,0 | 2,38 | ||
46314 | 70 | 150 | 35 | 25,40 | 12 | 127 000 | 85 300 | 3,6 | 2,89 | ||
46318 | 90 | 190 | 43 | 4,0 | 31,75 | 12 | 165 000 | 122 000 | 2,8 | 5,65 | |
46320 | 100 | 215 | 47 | 36,51 | 12 | 213 000 | 177 000 | 2,4 | 8,04 | ||
Серия диаметров 4, серия ширин 0 | |||||||||||
66407 | 35 | 100 | 25 | 2,5 | 1,2 | — | — | — | — | — | 1,05 |
66408 | 40 | 110 | 27 | 3,0 | 1,5 | 20,64 | 10 | 72 200 | 42 300 | 4,3 | 1,37 |
66409 | 45 | 120 | 29 | 23,02 | 10 | 81 600 | 47 300 | 4,0 | 1,75 | ||
66410 | 50 | 130 | 31 | 3,5 | 2,0 | 24,61 | 10 | 98 900 | 60 100 | 2,8 | 2,17 |
66412 | 60 | 150 | 35 | 26,99 | 10 | 125 000 | 79 500 | 2,2 | 3,37 | ||
66414 | 70 | 180 | 42 | 4,0 | 2,0 | 36,51 | 10 | 152 000 | 109 000 | 1,4 | 5,7 |
66418 | 90 | 225 | 54 | 5,0 | 2,5 | 41,28 | 10 | 208 800 | 162 000 | 1,2 | 12,0 |
Предельные отклонения монтажной высоты Т подшипника
Размеры, мм
Номинальные диаметры d | Предельные отклонения монтажной высоты Т для подшипников типов | |||||||||||||
36200 | 46100 | 46200 | 46300 | 66200 | 66300 | 66400 | ||||||||
верхн. | нижн. | верхн. | нижн. | верхн. | нижн. | верхн. | нижн. | верхн. | нижн. | верхн. | нижн. | верхн. | нижн. | |
Св. 9 до 20 | +0,1 | 0,25 | 0 | 0,3 | 0 | 0,30 | 0 | 0,40 | 0 | 0,3 | 0,1 | 0,3 | _ | _ |
» 20 » 50 | 0,25 | 0,3 | 0,35 | 0,45 | 0,4 | 0,1 | 0,35 | 0,1 | 0,35 | |||||
» 50 » 80 | 0,30 | 0,4 | 0,45 | 0,60 | 0,4 | 0,1 | 0,45 | 0,1 | 0,50 | |||||
» 80 » 180 | 0,50 | 0,6 | 0,70 | 0,70 | 0,6 | 0,1 | 0,60 | 0,1 | 0,60 | |||||
Пример обозначения однорядного радиально-упорного шарикового подшипника типа 36000, серии диаметров 2 с а = 15° d = 17мм, D = 40мм и Т = 12 мм:
Подшипник 36203К6 ГОСТ 831-75
137. Шариковые радиально-упорные сдвоенные подшипники (по ГОСТ 832-78)
Сдвоенные радиально-упорные шариковые подшипники предназначены для фиксации вала и корпуса в радиальном и осевом направлениях.
Типы подшипников в зависимости от углов контакта
Обозначение типов подшипников | Угол контакта а°* | Схема комплектации подшипников | Примечание | |
236000 246000 266000 | 12 26 36 | 0 | Комплект двустороннего осевого действия | Наружные кольца обращены друг к другу широкими торцами |
236000К | 15 | Внутренние кольца обращены друг к другу узкими торцами | ||
336000 346000 366000 | 12 26 36 | X
| Наружные кольца обращены друг к другу узкими торцами | |
336000К | 15 | Внутренние кольца обращены друг к другу широкими торцами | ||
436000 446000 466000 | 12 26 36 | Т | Комплект одностороннего осевого действия | Наружные кольца обращены друг к другу разноименными торцами |
436000К | 15 | Внутренние кольца обращены друг к другу разноименными торцами | ||
* а - угол контакта, равный углу между линией действия результирующей нагрузки на теле качения и плоскостью, перпендикулярной оси подшипника.
Схема комплектации и рисунок сдвоенного подшипника
Обозначение типов подшипников | Схема комплектации подшипников | Рисунок сдвоенного подшипника после монтажа | Примечание |
236000; 246000; 266000 | 0 |
| Комплекты подшипников фиксируют вал и корпус в обоих осевых направлениях |
236000К | 0 |
| Комплекты подшипников фиксируют вал и корпус обоих осевых направлений |
336000; 346000; 366000 | X |
| Комплекты подшипника воспринимают комбинированные, двусторонние осевые, а также радиальные нагрузки |
336000К |
| Комплекты подшипников типов 236000, 246000 и 266000 обеспечивают более жесткую утлофиксацию вала, чем cooтветствующие им подшипники типов 336000, 346000, 366000 | |
436000; 446000; 466000 | Т |
| Комплекты подшипников фиксируют вал в одном осевом направлении |
436000К |
|
Основные размеры (мм) и обозначения сдвоенных подшипников
Обозначения внутреннего диаметра подшипника для типов | d | D | В | r | r1 | |||
236100; | 236100К; | 246100; | 266100; | |||||
336100; | 336100К; | 346100; | 366100; | |||||
436100 | 446100К | 446100 | 466100 | |||||
Серия диаметров 1, серия ширин 0 | ||||||||
00 | 00 | 00 | — | 10 | 26 | 16 | 0,5 | 0,3 |
01 | 01 | 01 | 12 | 28 | 16 | |||
02 | 02 | 02 | 15 | 32 | 18 | |||
03 | 03 | 03 | 17 | 35 | 20 | |||
04 | 04 | 04 | — | 20 | 42 | 24 | 1,0 | 0,3 |
05 | 05 | 05 | 25 | 47 | ||||
06 | 06 | 06 | — | 30 | 55 | 26 | 1,5 | 0,5 |
07 | 07 | 07 | 35 | 62 | 28 | |||
— | 08 | 08 | 40 | 68 | 30 | |||
— | 09 | 09 | 45 | 75 | 32 | |||
— | 10 | 10 | 50 | 80 | 32 | |||
Обозначения внутреннего диаметра подшипника для типов | d | D | В | r | r1 |
| |||||||||||
236200; | 236200К; | 246200; | 266200; |
| |||||||||||||
336200; | 336200К; | 346200; | 366200; |
| |||||||||||||
436200 | 446200К | 446200 | 466200 |
| |||||||||||||
Серия диаметров 2, серия ширин 0 | |||||||||||||||||
— | — | — | 00 | 10 | 30 | 18 | 1,0 | 0,3 | |||||||||
01 | 01 | 01 | 01 | 12 | 32 | 20 | |||||||||||
02 | 02 | 02 | 02 | 15 | 35 | 22 | |||||||||||
03 | 03 | 03 | 03 | 17 | 40 | 24 | |||||||||||
04 | 04 | 04 | 04 | 20 | 47 | 28 | 1,5 | 0,5 | |||||||||
05 | 05 | 05 | 05 | 25 | 52 | 30 | |||||||||||
06 | 06 | 06 | 06 | 30 | 62 | 32 | |||||||||||
07 | 07 | 07 | 07 | 35 | 72 | 34 | 2,0 | 1,0 | |||||||||
08 | 08 | 08 | 08 | 40 | 80 | 36 | |||||||||||
09 | 09 | 09 | 09 | 45 | 85 | 38 | |||||||||||
10 | 10 | 10 | 10 | 50 | 90 | 40 | |||||||||||
11 | 11 | 11 | 11 | 55 | 100 | 42 | 2,5 | 1,2 | |||||||||
12 | 12 | 12 | 12 | 60 | 110 | 44 | |||||||||||
13 | 13 | 13 | 13 | 65 | 120 | 46 | |||||||||||
14 | 14 | 14 | 14 | 70 | 125 | 48 | |||||||||||
15 | 15 | 15 | 15 | 75 | 130 | 50 | |||||||||||
16 | 16 | 16 | 16 | 80 | 140 | 52 | 3,0 | 1,5 | |||||||||
17 | 17 | 17 | 17 | 85 | 150 | 56 | |||||||||||
18 | 18 | 18 | 18 | 90 | 160 | 60 | |||||||||||
20 | 20 | 20 | 20 | 100 | 180 | 68 | 3,5 | 2,0 | |||||||||
Обозначения внутреннего диаметра подшипника для типов | d | D | В | r | r1 | |
246300, 346300; 446300 | 266300; 366300; 466300 | |||||
Серия диаметров 3, серия ширин 0 | ||||||
03 | — | 17 | 47 | 28 | 1,5 | 0,5 |
04 | — | 20 | 52 | 30 | 2,0 | 1,0 |
05 | 05 | 25 | 62 | 34 | ||
06 | 06 | 30 | 72 | 38 | ||
07 | 07 | 35 | 80 | 42 | 2,5 | 1,2 |
08 | 08 | 40 | 90 | 46 | ||
09 | 09 | 45 | 100 | 50 | ||
10 | 10 | 50 | 110 | 54 | 3,0 | 1,5 |
11 | 11 | 55 | 120 | 58 | ||
12 | 12 | 60 | 130 | 62 | 3,5 | 2,0 |
13 | 13 | 65 | 140 | 66 | ||
14 | 14 | 70 | 150 | 70 | ||
15 | 15 | 75 | 160 | 74 | ||
16 | 16 | 80 | 170 | 78 | ||
17 | 17 | 85 | 180 | 82 | 4,0 | |
18 | 18 | 90 | 190 | 86 | ||
20 | 20 | 100 | 215 | 94 | ||
Обозначения внутреннего диаметра подшипника для типов | d | D | В | r | r1 |
266400; 366400; 466400 | |||||
Серия диаметров 4, узкая серия ширин 0 | |||||
05 | 25 | 80 | 42 | 2,5 | 1,2 |
06 | 30 | 90 | 46 | ||
07 | 35 | 100 | 50 | ||
08 | 40 | 110 | 54 | 3,0 | 1,5 |
09 | 45 | 120 | 58 | ||
10 | 50 | 130 | 62 | 3,5 | 2,0 |
11 | 55 | 140 | 66 | ||
12 | 60 | 150 | 70 | ||
13 | 65 | 160 | 74 | ||
14 | 70 | 180 | 84 | 4,0 | |
15 | 75 | 190 | 90 | ||
16 | 80 | 200 | 96 | ||
17 | 85 | 210 | 104 | 5,0 | 2,5 |
18 | 90 | 225 | 108 | ||
20 | 100 | 250 | 116 | ||
ГОСТ 832—78 предусматривает размеры подшипников, превышающие приведенные в табл. 137.
Пример обозначения комплекта сдвоенного подшипника серии диаметров 2 по схеме Т с d = 30мм, с углом контакта а = 12°:
Подшипник 436206 ГОСТ 832- 78
То же, со скосом на внутреннем кольце и а = 15°.
Подшипник 436206К ГОСТ 852-78
Допуск ширины В для сдвоенных подшипников не должен превышать тройного допуска ширины одного однорядного радиально-упорного шарикового подшипника.
Сдвоенные подшипники собираются изготовителем из однорядных радиально-упорных шариковых подшипников одного типоразмера и класса точности и должны поставляться и применяться комплектно.
Предварительный натяг (величина нагрузки в ньютонах) сдвоенных подшипников устанавливается по согласованию с потребителем. Величина предварительного натяга должна быть указана в паспорте подшипника.
На наружных и внутренних цилиндрических посадочных поверхностях колец сдвоенных подшипников в местах наибольшего радиального биения должны быть нанесены стрелки >< одновременно указывающие, какими торцами должны соприкасаться наружные и внутренние кольца в рабочем состоянии.
Технические требования - по ГОСТ 520—89 (ИСО 199—79; ИСО 492-86).
Технические требования к посадочным местам вала и корпуса для подшипников — по ГОСТ 3325-85.
138. Роликовые конические однорядные подшипники повышенной грузоподъемности ГОСТ 27365—87


Размеры, мм
Условное обозначение подшипника | d | D | В | С | Т | Е | r1s min*1 | r2s min*1 | а | Масса, кг ≈ | С, Н*2 | С0, Н*2 | nпред·10-3, мин-1 | Расчетные параметры | |||
е | Y | Y0 | |||||||||||||||
Серия диаметров 1, серия ширин 2 | |||||||||||||||||
2007104А | 20 | 42 | 15 | 12,0 | 15 | 32,781 | 0,6 | 0,6 | 14° | 0,101 | 22 900 | 15 600 | — | — | — | — | |
20071/22А | 22 | 44 | 15 | 11,5 | 15 | 34,708 | 0,6 | 0,6 | 14° 50' | 0,107 | 23 800 | 16 600 | — | — | — | — | |
2007105А | 25 | 47 | 15 | 11,5 | 15 | 37,393 | 0,6 | 0,6 | 16° | 0,117 | 25 500 | 18 300 | — | — | — | — | |
20071/28А | 28 | 52 | 16 | 12,0 | 16 | 41,991 | 1,0 | 1,0 | 16° | 0,150 | 29 700 | 21 600 | — | — | — | — | |
2007106А | 30 | 55 | 17 | 13,0 | 17 | 44,438 | 1,0 | 1,0 | 16° | 0,175 | 33 600 | 24 500 | 6,7 | 0,24 | 2,5 | 1,38 | |
20071/32А | 32 | 58 | 17 | 13,0 | 17 | 46,708 | 1,0 | 1,0 | 16° 50' | 0,193 | 34 700 | 26 000 | — | — | — | — | |
2007107А | 35 | 62 | 18 | 14,0 | 18 | 50,510 | 1,0 | 1,0 | 16°50' | 0,224 | 40 200 | 30 500 | 6,0 | 0,27 | 2,21 | 1,22 | |
2007108А | 40 | 68 | 19 | 14,5 | 19 | 56,897 | 1,0 | 1,0 | 14°10' | 0,278 | 49 500 | 40 000 | 5,3 | 0,33 | 1,84 | 1,01 | |
2007109А | 45 | 75 | 20 | 5,5 | 20 | 63,248 | 1,0 | 1,0 | 14-40' | 0,354 | 55 000 | 44 000 | 4,8 | 0,30 | 2,00 | 1,10 | |
2007110А | 50 | 80 | 20 | 5,5 | 20 | 67,841 | 1,0 | 1,0 | 15°45' | 0,384 | 57 200 | 48 000 | — | — | — | — | |
2007111А | 55 | 90 | 23 | 17,5 | 23 | 76,505 | 1,5 | 1,5 | 15°10' | 0,570 | 76 500 | 64 000 | 4,0 | 0,33 | 1,80 | 0,99 | |
20р7112А | 60 | 95 | 23 | 17,5 | 23 | 80,634 | 1,5 | 1,5 | 16° | 0,605 | 76 500 | 67 000 | — | — | — | — | |
2007113А | 65 | 100 | 23 | 17,5 | 23 | 85,567 | 1,5 | 1,5 | 17° | 0,642 | 78 100 | 68 000 | 3,4 | 0,38 | 1,59 | 0,87 | |
2007114А | 70 | 110 | 25 | 19,0 | 25 | 93,633 | 1,5 | 1,5 | 16°10' | 0,875 | 95 200 | 83 000 | 3,2 | 0,29 | 2,11 | 1,16 | |
2007115А | 75 | 115 | 25 | 19,0 | 25 | 98,358 | 1,5 | 1,5 | 17° | 0,921 | 99 000 | 88 000 | 3,0 | 0,30 | 2,00 | 1,10 | |
2007116А | 80 | 125 | 29 | 22,0 | 29 | 107,334 | 1,5 | 1,5 | 15°45' | 1,290 | 128 000 | 116 000 | 2,6 | 0,34 | 1,77 | 0,97 | |
2007117А | 85 | 130 | 29 | 22,0 | 29 | 11,788 | 1,5 | 1,5 | 16 °25' | 1,350 | 130 000 | 120 000 | — | — | — | — | |
2007118А | 90 | 140 | 32 | 24,0 | 32 | 19,948 | 2,0 | 1,5 | 15 °45' | 1,760 | 157 000 | 146 000 | 2,2 | 0,34 | 1,76 | 0,97 | |
2007119А | 95 | 145 | 32 | 24,0 | 32 | 124,927 | 2,0 | 1,5 | 16°25' | 1,850 | 157 000 | 146 000 | 2,2 | 0,36 | 1,69 | 0,93 | |
2007120А | 100 | 150 | 32 | 24,0 | 32 | 129,269 | 2,0 | 1,5 | 17° | 1,920 | 161 000 | 158 000 | 2,0 | 0,37 | 1,62 | 0,89 | |
Серия диаметров 2, серия ширин 0 | |||||||||||||||||
7203А | 17 | 40 | 12 | 11 | 13,25 | 31,408 | 1,0 | 1,0 | 12°57'10" | 0,081 | 17 900 | 12 000 | 9,0 | 0,31 | 1,91 | 1,05 | |
7204А | 20 | 47 | 14 | 12 | 15,25 | 37,304 | 1,0 | 1,0 | 12°57'10" | 0,128 | 26 000 | 16 600 | 8,0 | 0,36 | 1,67 | 0,92 | |
7205А | 25 | 52 | 15 | 13 | 16,25 | 41,135 | 1,0 | 1,0 | 14°02'10" | 0,157 | 29 200 | 21 000 | 7,5 | 0,36 | 1,67 | 0,92 | |
7206А | 30 | 62 | 16 | 14 | 17,25 | 49,990 | 1,0 | 1,0 | 14°02'10" | 0,240 | 38 000 | 25 500 | 6,3 | 0,36 | 1,65 | 0,91 | |
7207А | 35 | 72 | 17 | 15 | 18,25 | 58,844 | 1,5 | 1,5 | 14°02'10" | 0,340 | 48 400 | 32 500 | 5,3 | 0,37 | 1,62 | 0,89 | |
7208А | 40 | 80 | 18 | 16 | 19,75 | 65,730 | 1,5 | 1,5 | 14°02'10" | 0,435 | 58 300 | 40 000 | 4,8 | 0,38 | 1,56 | 0,86 | |
7209А | 45 | 85 | 19 | 16 | 20,75 | 70,440 | 1,5 | 1,5 | 15°06'34" | 0,499 | 62 700 | 50 000 | 4,5 | 0,41 | 1,45 | 0,80 | |
7210A | 50 | 90 | 20 | 17 | 21,75 | 75,078 | 1,5 | 1.5 | 15°38'32" | 0,566 | 70 400 | 55 000 | 4,3 | 0,37 | 1,60 | 0,88 | |
7211А | 55 | 100 | 21 | 18 | 22,75 | 84,197 | 2,0 | 1,5 | 15°06'34" | 0,732 | 84 200 | 61 000 | 3,8 | 0,41 | 1,46 | 0,80 | |
7212A | 60 | 110 | 22 | 19 | 23,75 | 91,876 | 2,0 | 1,5 | 15°06'34" | 0,931 | 91 300 | 70 000 | 3,4 | 0,35 | 1,71 | 0,94 | |
7213А | 65 | 120 | 23 | 20 | 24,75 | 101,934 | 2,0 | 1,5 | 15°06'34" | 1,170 | 108 000 | 78 000 | — | — | — | — | |
72I4A | 70 | 125 | 24 | 21 | 26,25 | 105.748 | 2,0 | 1,5 | 15°38'32" | 1,300 | 119 000 | 89 000 | 3,0 | 0,37 | 1,62 | 0,89 | |
7215A | 75 | 130 | 25 | 22 | 27,25 | 110,408 | 2,0 | 1,5 | 16°10'20" | 1,410 | 130 000 | 100 000 | 2,8 | 0,39 | 1,55 | 0,85 | |
7216A | 80 | 140 | 26 | 22 | 28,25 | 119,169 | 2,5 | 2,0 | 15°38'32" | 1,700 | 140 000 | 114 000 | 2,4 | 0,42 | 1,43 | 0,78 | |
7217A | 85 | 150 | 28 | 24 | 30,50 | 126,685 | 2,5 | 2,0 | 15°38'32" | 2,140 | 165 000 | 134 000 | 2,2 | 0,43 | 1,38 | 0,76 | |
7218A | 90 | 160 | 30 | 26 | 32,50 | 134,901 | 2,5 | 2,0 | 15°38'32" | 2,620 | 183 000 | 150 000 | 2,0 | 0,38 | 1,56 | 0,86 | |
7219A | 95 | 170 | 32 | 27 | 34,50 | 143,385 | 3,0 | 2,5 | 15°38'32" | 3,160 | 205 000 | 156 000 | 1,9 | 0,41 | 1,48 | 0,81 | |
7220A | 100 | 180 | 34 | 29 | 37,00 | 151,310 | 3,0 | 2,5 | 15°38'32" | 3,810 | 233 000 | 190 000 | 1,9 | 0,40 | 1,49 | 0,82 | |
Серия диаметров 5, серия ширин 0 | |||||||||||||||||
7505А | 25 | 52 | 18 | 16 | 19,25 | 41,331 | 1,0 | 1,0 | 13°30' | 0,180 | 34 100 | 25 000 | — | — | — | — | |
7506A | 30 | 62 | 20 | 17 | 21,25 | 48,982 | 1,0 | 1,0 | 14°02'10" | 0,500 | 47 300 | 37 000 | 6,3 | 0,37 | 1,65 | 0,90 | |
7507A | 35 | 72 | 23 | 19 | 24,25 | 57,087 | 1,5 | 1,5 | 14°02'10" | 0,458 | 61 600 | 45 000 | 5,3 | 0,35 | 1,73 | 0,95 | |
7508A | 40 | 80 | 23 | 19 | 24,75 | 64,715 | 1,5 | 1,5 | 14°02'10" | 0,560 | 70 400 | 50 000 | 4,8 | 0,38 | 1,58 | 0,87 | |
7509A | 45 | 85 | 23 | 19 | 24,75 | 69,610 | 1,5 | 1,5 | 15°06'34" | 0,598 | 74 800 | 60 000 | 4,5 | 0,42 | 1,44 | 0,80 | |
7510A | 50 | 90 | 23 | 19 | 24,75 | 74,226 | 1,5 | 1,5 | 15° 38'32" | 0,644 | 76 500 | 64 000 | 4,3 | 0,42 | 1,43 | 0,78 | |
7511A | 55 | 100 | 25 | 21 | 26,75 | 82,837 | 2,0 | 1,5 | 15°06'34" | 0,878 | 99 000 | 80 000 | 3,8 | 0,36 | 1,67 | 0,92 | |
7512A | 60 | 110 | 28 | 24 | 29,75 | 90,236 | 2,0 | 1,5 | 15°06'34" | 1,200 | 120 000 | 100 000 | 3,4 | 0,39 | 1,53 | 0,84 | |
7513А | 65 | 120 | 31 | 27 | 32,75 | 99,484 | 2,0 | 1,5 | 15°06'34" | 1,580 | 142 000 | 120 000 | 3,0 | 0,37 | 1,62 | 0,89 | |
7514A | 70 | 125 | 31 | 27 | 33,25 | 103,765 | 2,0 | 1,5 | 15°38'32" | 1,680 | 147 000 | 118 000 | 2,8 | 0,39 | 1,55 | 0,85 | |
7515A | 75 | 130 | 31 | 27 | 33,25 | 108,932 | 2,0 | 1,5 | 16°10'20" | 1,760 | 157 000 | 130 000 | 2,6 | 0,41 | 1,48 | 0,81 | |
75I6A | 80 | 140 | 33 | 28 | 35,25 | 117,466 | 2,5 | 2,0 | 15°38'32" | 2,180 | 176 000 | 155 000 | 2,4 | 0,40 | 1,49 | 0,82 | |
7517A | 85 | 150 | 36 | 30 | 38,50 | 124,970 | 2,5 | 2,0 | 15°38'32" | 2,750 | 201 000 | 180 000 | 2,2 | 0,39 | 1,55 | 0,85 | |
7518А | 90 | 160 | 40 | 34 | 42,50 | 132,615 | 2,5 | 2,0 | 15°38'32" | 3,490 | 238000 | 193000 | 2,0 | 0,39 | 1,55 | 0,85 | |
7519А | 95 | 170 | 43 | 37 | 45,50 | 140,259 | 3,0 | 2,5 | 15°38'32" | 4,320 | 264000 | 220000 | 1,9 | 0,38 | 1,56 | 0,86 | |
7520А | 100 | 180 | 46 | 39 | 49,00 | 148,184 | 3,0 | 2,5 | 15°38'32" | 5,210 | 297000 | 280000 | 1,8 | 0,40 | 1,49 | 0,82 | |
7302А | 15 | 42 | 13 | 11 | 14,25 | 33,272 | 1,0 | 1,0 | 10°45'29" | 0,099 | 21 200 | 12 700 | — | — | — | — | |
7303А | 17 | 47 | 14 | 12 | 15,25 | 37,420 | 1,0 | 1.0 | 10°45'29" | 0,133 | 26 000 | 16 000 | — | — | — | — | |
7304А | 20 | 52 | 15 | 13 | 16,25 | 41,318 | 1,5 | 1,5 | 11°18'36" | 0,174 | 31 900 | 20 000 | 8,0 | 0,30 | 2,03 | 1,11 | |
7305А | 25 | 62 | 17 | 15 | 18,25 | 50,637 | 1,5 | 1,5 | 11°18'36" | 0,273 | 41 800 | 28 000 | 6,7 | 0,36 | 1,66 | 0,92 | |
7306А | 30 | 72 | 19 | 16 | 20,75 | 58,287 | 1,5 | 1,5 | 11°51'35" | 0,406 | 52 800 | 39 000 | 5,6 | 0,34 | 1,78 | 0,98 | |
7307А | 35 | 80 | 21 | 18 | 22,75 | 65,769 | 2,0 | 1,5 | 11°51'35" | 0,541 | 68 200 | 50 000 | 5,0 | 0,32 | 1,88 | 1,03 | |
7308А | 40 | 90 | 23 | 20 | 25,25 | 72,703 | 2,0 | 1,5 | 12°57'10" | 0,769 | 80 900 | 56 000 | 4,5 | 0,28 | 2,16 | 1,19 | |
7309А | 45 | 100 | 25 | 22 | 27,25 | 81,780 | 2,0 | 1,5 | 12°57'10" | 1,020 | 101 000 | 72 000 | 4,0 | 0,29 | 2,09 | 1,15 | |
7310А | 50 | 110 | 27 | 23 | 29,25 | 90,633 | 2,5 | 2,0 | 12°57'10" | 1,310 | 117 000 | 90 000 | 3,6 | 0,31 | 1,94 | 1,06 | |
7311А | 55 | 120 | 29 | 25 | 31,50 | 99,146 | 2,5 | 2,0 | 12°57'10" | 1,670 | 134 000 | 110 000 | 3,2 | 0,33 | 1,80 | 0,99 | |
7312А | 60 | 130 | 31 | 26 | 33,50 | 107,769 | 3,0 | 2,5 | 12°57'10" | 2,060 | 161 000 | 120 000 | 3,0 | 0,30 | 1,97 | 1,08 | |
7313А | 65 | 140 | 33 | 28 | 36,00 | 116,846 | 3,0 | 2,5 | 12°57'10" | 2,550 | 183 000 | 150 000 | 2,6 | 0,30 | 1,97 | 1,08 | |
7314А | 70 | 150 | 35 | 30 | 38,00 | 125,244 | 3,0 | 2,5 | 12°57'10" | 3,090 | 209 000 | 170 000 | 2,4 | 0,31 | 1,94 | 1,06 | |
7315А | 75 | 160 | 37 | 31 | 40,00 | 134,097 | 3,0 | 2,5 | 12°57'10" | 3,680 | 229 000 | 185 000 | 2,2 | 0,33 | 1,83 | 1,01 | |
7316А | 80 | 170 | 39 | 33 | 42,50 | 143,174 | 3,0 | 2,5 | 12°57'10" | 4,410 | 255 000 | 190 000 | — | — | — | — | |
7317А | 85 | 180 | 41 | 34 | 44,50 | 150,433 | 4,0 | 3,0 | 12°57'10" | 5,130 | 286 000 | 216 000 | 1,9 | 0,31 | 1,91 | 1,05 | |
7318А | 90 | 190 | 43 | 36 | 46,50 | 159,061 | 4,0 | 3,0 | 12°57'10" | 5,930 | 308 000 | 236 000 | 1,8 | 0,32 | 1,88 | 1,03 | |
7319А | 95 | 200 | 45 | 38 | 49,50 | 165,861 | 4,0 | 3,0 | 12°57'10" | 6,920 | 341 000 | 265 000 | — | — | — | — | |
7320А | 100 | 215 | 47 | 39 | 51,50 | 178,578 | 4,0 | 3,0 | 12°57'10" | 8,470 | 380 000 | 290 000 | — | 0,31 | 1,88 | 1,03 | |
*1 Наименьшие значения r1 и r2
*2 Значения динамической С и статической С0 грузоподъемностью.
Продолжение табл. 138
Размеры упорного борта наружного кольца
D | D1 | С1 для конструктивной разновидности подшипников | ||||||
3007700А | 7200А | 7500А | 3007200А | 7300А | 1027300А | 7600А | ||
40 | 44 | — | 3,0 | — | — | — | — | — |
42 | 46 | — | — | — | — | 3,0 | — | — |
47 | 51 | — | 3,0 | — | — | 3,0 | — | 4,0 |
52 | 57 | — | 3,5 | 3,5 | — | 3,5 | — | 4,5 |
62 | 67 | — | 3,5 | 4,0 | 4,5 | 4,0 | 4,0 | 5,0 |
65 | 70 | — | — | — | 4,5 | — | — | — |
72 | 77 | — | 4,0 | 4,5 | 5,0 | 4,0 | 4,0 | 6,0 |
80 | 85 | 4,5 | 4,0 | 4,5 | 5,0 | 4,5 | 4,5 | 6,0 |
85 | 90 | 5,0 | 4,0 | 4,5 | 5,0 |
| — | — |
90 | 95 | — | 4,0 | 4,5 | 5,5 | 4,5 | 4,5 | 6,0 |
95 | 101 | 5,0 | — | — | — | — | — | — |
100 | 106 | 5,0 | 4,5 | 5,0 | 6,0 | 5,0 | 5,0 | 7,0 |
110 | 116 | 5,5 | 4,5 | 5,0 | 7,0 | 5,0 | 5,0 | 8,0 |
120 | 127 | 6,0 | 4,5 | 6,0 | 7,0 | 5,5 | 5,5 | 8,0 |
125 | 132 | 6,0 | 5,0 | 6,0 | 7,0 | — | — | — |
130 | 137 | 6,0 | 5,0 | 6,0 | 7,0 | 5,5 | 5,5 | 8,0 |
140 | 147 | 7,0 | 5,0 | 6,0 | 8,0 | 6,0 | 6,0 | 8,0 |
150 | 158 | 8,0 | 5,0 | 7,0 | 9,0 | 7,0 | 7,0 | 10,0 |
160 | 168 | 9,0 | 6,0 | 8,0 | 10,0 | 7,0 | 7,0 | 10,0 |
165 | 173 | 9,0 | — | — | — | — | — | — |
170 | 179 | — | 6,5 | 8,0 | 10,0 | 7,0 | 7,0 | 11,0 |
175 | 184 | 9,0 | — | — | — | — | — | — |
180 | 190 | 9,0 | 7,0 | 8,0 | 10,0 | 8,0 | 8,0 | 11,0 |
190 | 200 | — | 7,0 | 9,0 | 11,0 | 8,0 | 8,0 | 11,0 |
200 | 210 | 10,0 | 7,0 | 10,0 | — | 8,0 | 8,0 | 11,0 |
215 | 225 | — | 8,0 | 11,0 | — | 9,0 | 9,0 | 12,0 |
225 | 236 | — | — | — | — | 9,5 | 9,5 | 12,0 |
230 | 241 | — | 8,0 | 11,0 | — | — | — | .— |
240 | 251 | — | — | — | — | 9,5 | 9,5 | 12,0 |
250 | 261 | — | 9,0 | 12,0 | — | — | — | — |
260 | 272 | — | — | — | — | 11,0 | 11,0 | 13,0 |
270 | 282 | — | 9,0 | 12,0 | — | — | — | — |
Пример условного обозначения однорядного конического роликового подшипника серии диаметров 1, серии ширин 2 с d = 70мм, D = 110мм и T = 25мм
Подшипник 2007114А ГОСТ 27365-87
То же, с упорным бортом на наружном кольце:
Подшипник 2067114А ГОСТ 27365-87
То же, с углом контакта а ≥ 20° серии диаметров 3, серии ширин 1 с d = 70мм, D = 150мм и Т = 38мм:
Подшипник 1027314А ГОСТ 27365-87
То же, с упорным бортом на наружном кольце:
Подшипник 1627314А ГОСТ 27365-87
Значения Т1 следует определять по формуле
Т1 = Т – С + С1.
Предельные отклонения размера Т1 должны соответствовать предельным отклонениям монтажной высоты Т.
139. Роликовые конические однорядные подшипники с углом конуса 20—30°(ГОСТ 27365-87)

Размеры, мм
Серия диаметров 3, серия ширин 1 | ||||||||||||
Обозначение подшипника | d | D | В | С1 | Т | r | r1 | а | С, Н | С0, Н | nпред·10-3, мин-1 | Масса, кг |
1027305А | 25 | 62 | 17 | 13 | 18,25 | 1,5 | 0,8 | 28°48'39" | 35 800 | 23 200 | 6,7 | 0,270 |
1027306А | 30 | 72 | 19 | 14 | 20,75 | 1,5 | 0,8 | 44 600 | 29 000 | 5.6 | 0,390 | |
1027307А | 35 | 80 | 21 | 15 | 22,75 | 2,1 | 1,0 | 57 200 | 39 000 | 5,0 | 0,550 | |
1027308А | 40 | 90 | 23 | 17 | 25,25 | 2,0 | 1,0 | 69 300 | 54 000 | 4,5 | 0,747 | |
1027309А | 45 | 100 | 25 | 18 | 27,25 | 2,0 | 1,0 | 85 800 | 60 000 | 4,0 | 0,997 | |
1027310А | 50 | 110 | 27 | 19 | 29,25 | 2,5 | 1,0 | 99 000 | 72 500 | 3,6 | 1,270 | |
1027311А | 55 | 120 | 29 | 21 | 31,50 | 2,5 | 1.0 | 114000 | 80 000 | 3,2 | 1,620 | |
1027312А | 60 | 130 | 31 | 22 | 33,50 | 3,0 | 1,0 | 134 000 | 96 500 | 3,0 | 2,010 | |
102731 ЗА | 65 | 140 | 33 | 23 | 36,00 | 3,0 | 1,0 | 154 000 | 112 000 | 2,6 | 2,470 | |
1027314А | 70 | 150 | 35 | 25 | 38,00 | 3,0 | 1,0 | 176 000 | 127 000 | 2,4 | 3,010 | |
1027315А | 75 | 160 | 37 | 26 | 40,00 | 3,0 | 1,0 | 194 000 | 143 000 | 2,2 | 3,540 | |
1027316А | 80 | 170 | 39 | 27 | 42,50 | 3,0 | 1,0 | 212 000 | 153 000 | — | 4,200 | |
1027317А | 85 | 180 | 41 | 28 | 44,50 | 4,0 | 1,5 | 229 000 | 166 000 | 1,9 | 5,100 | |
1027318А | 90 | 190 | 43 | 30 | 46,50 | 4,0 | 1,5 | 251 000 | 183 000 | 1,8 | 5,900 | |
1027319А | 95 | 200 | 45 | 32 | 49,50 | 4,0 | 1,5 | 275 000 | 204 000 | — | 6,950 | |
1027320А | 100 | 215 | 51 | 35 | 56,50 | 4,0 | 1,5 | 352 000 | 270 000 | — | 9,070 | |
Расчетные параметры; е = 0,83; Y = 0,72; Y0 = 0,4.
Пример обозначения роликового подшипника серии диаметров 3, серии ширин 1 с d = 50мм, D = 110мм и Т = 29,25мм:
Подшипник 1027310 ГОСТ 27365—87
140. Шариковые упорные одинарные подшипники (по ГОСТ 7872-89)

Размеры, мм
Обозначения подшипников | d | d1 | D | Н | r | С, H | С0, Н | nпред·10-3, мин-1 | Масса, кг |
Серия диаметров 1, серия высот 0 | |||||||||
8100Н | 10 | 11 | 24 | 9 | 0,5 | 10 000 | 11 800 | 7,0 | 0,020 |
8101Н | 12 | 13 | 26 | 9 | 0,5 | 10 400 | 12 900 | 7,0 | 0,022 |
8102Н | 15 | 16 | 28 | 9 | 0,5 | 10 600 | 14 000 | 6,3 | 0,024 |
8103Н | 17 | 18 | 30 | 9 | 0,5 | 11 400 | 16 600 | 6,3 | 0,027 |
8104Н | 20 | 21 | 35 | 10 | 0,5 | 15 000 | 22 400 | 5,6 | 0,040 |
8105Н | 25 | 26 | 42 | 11 | 1,0 | 18 000 | 30 000 | 4,8 | 0,060 |
8106Н | 30 | 32 | 47 | 11 | 1,0 | 19 000 | 33 500 | 4,5 | 0,070 |
8107Н | 35 | 37 | 52 | 12 | 1,0 | 20 000 | 39 000 | 4,3 | 0,084 |
8108Н | 40 | 42 | 60 | 13 | 1,0 | 27 000 | 53 000 | 3,8 | 0,124 |
8109Н | 45 | 47 | 65 | 14 | 1,0 | 28 000 | 58 500 | 3,4 | 0,15 |
8110Н | 50 | 52 | 70 | 14 | 1,0 | 29 000 | 64 000 | 3,4 | 0,16 |
8111Н | 55 | 57 | 78 | 16 | 1,0 | 30 500 | 63 000 | 3,0 | 0,24 |
8112Н | 60 | 62 | 85 | 17 | 1,5 | 41 500 | 95 000 | 2,6 | 0,29 |
8113Н | 65 | 67 | 90 | 18 | 1,5 | 38 000 | 85 000 | 2,4 | 0,34 |
8114Н | 70 | 72 | 95 | 18 | 1,5 | 40 000 | 93 000 | 2,4 | 0,36 |
8115Н | 75 | 77 | 100 | 19 | 1,5 | 44 000 | 104 000 | 2,2 | 0,42 |
8116Н | 80 | 82 | 105 | 19 | 1,5 | 45 000 | 108 000 | 2,0 | 0,43 |
8117Н | 85 | 87 | 110 | 19 | 1,5 | 45 500 | 114 000 | 2,0 | 0,46 |
8118Н | 90 | 92 | 120 | 22 | 1,5 | 45 500 | 118 000 | 1,8 | 0,68 |
8120Н | 100 | 102 | 135 | 25 | 1,5 | 61 000 | 160 000 | 1,7 | 1,00 |
8122Н | 110 | 112 | 145 | 25 | 1,5 | 65 500 | 186 000 | 1,6 | 1,08 |
8124Н | 120 | 122 | 155 | 25 | 1,5 | 65 500 | 193 000 | 1,6 | 1,16 |
Серия диаметров 2, серия высот 0 | |||||||||
8201Н | 12 | 14 | 28 | 11 | 1,0 | 13 200 | 16 000 | 5,6 | 0,30 |
8202Н | 15 | 17 | 32 | 12 | 1,0 | 16 600 | 20 800 | 5,3 | 0,05 |
8204Н | 20 | 22 | 40 | 14 | 1,0 | 22 400 | 32 000 | 4,3 | 0,08 |
8205Н | 25 | 27 | 47 | 15 | 1,0 | 28 000 | 42 500 | 3,8 | 0,12 |
8206Н | 30 | 32 | 52 | 16 | 1,0 | 25 500 | 40 000 | 3,6 | 0,14 |
8207Н | 35 | 37 | 62 | 18 | 1,5 | 35 500 | 57 000 | 3,2 | 0,22 |
8208Н | 40 | 42 | 68 | 19 | 1,5 | 46 500 | 83 000 | 2,8 | 0,27 |
8209Н | 45 | 47 | 73 | 20 | 1,5 | 39 000 | 67 000 | 2,6 | 0,32 |
8210Н | 50 | 52 | 78 | 22 | 1,5 | 50 000 | 90 000 | 2,4 | 0,39 |
8211Н | 55 | 57 | 90 | 25 | 1,5 | 61 000 | 114 000 | 2,0 | 0,61 |
8212Н | 60 | 62 | 95 | 26 | 1,5 | 62 000 | 118 000 | 1,9 | 0,69 |
8213Н | 65 | 67 | 100 | 27 | 1,5 | 64 000 | 125 000 | 1,8 | 0,77 |
8214Н | 70 | 72 | 105 | 27 | 1,5 | 65 500 | 134 000 | 1,8 | 0,81 |
8215Н | 75 | 77 | 110 | 27 | 1,5 | 67 000 | 143 000 | 1,7 | 0,86 |
8216Н | 80 | 82 | 115 | 28 | 1,5 | 75 000 | 160 000 | 1,7 | 0,95 |
8217Н | 85 | 87 | 125 | 31 | 1,5 | 98 000 | 212 000 | 1,6 | 1.30 |
8218Н | 90 | 92 | 135 | 35 | 2,0 | 120 000 | 255 000 | 1,5 | 1,77 |
8220Н | 100 | 102 | 150 | 38 | 2,0 | 122 000 | 270 000 | 1,3 | 2,36 |
8222Н | 110 | 112 | 160 | 38 | 2,0 | 129 000 | 305 000 | 1,2 | 2,57 |
Серия диаметров 3, серия высот 0 | |||||||||
8305Н | 25 | 27 | 52 | 18 | 1,5 | 34 500 | 46 500 | 3,4 | 0,16 |
8306Н | 30 | 32 | 60 | 21 | 1,5 | 38 000 | 55 000 | 2,8 | 0,27 |
8307Н | 35 | 37 | 68 | 24 | 1,5 | 50 000 | 75 000 | 2,4 | 0,39 |
8308Н | 40 | 42 | 78 | 26 | 1,5 | 61 000 | 95 000 | 2,0 | 0,50 |
8309Н | 45 | 47 | 85 | 28 | 1,5 | 75 000 | 118 000 | 1,9 | 0,69 |
8310Н | 50 | 52 | 95 | 31 | 2,0 | 88 000 | 146 000 | 1,8 | 1,00 |
8311Н | 55 | 57 | 105 | 35 | 2,0 | 102 000 | 176 000 | 1,6 | 1,34 |
8312Н | 60 | 62 | 110 | 35 | 2,0 | 102 000 | 176 000 | 1,6 | 1,43 |
8313Н | 65 | 67 | 115 | 36 | 2,0 | 106 000 | 186 000 | 1,6 | 4,57 |
8314Н | 70 | 72 | 125 | 40 | 2,0 | 137 000 | 250 000 | 1,4 | 2,10 |
8315Н | 75 | 77 | 135 | 44 | 2,5 | 163 000 | 300 000 | 1,2 | 2,70 |
8316Н | 80 | 82 | 140 | 44 | 2.5 | 160 000 | 300 000 | 1,2 | 2,80 |
8318Н | 90 | 92 | 155 | 50 | 2.5 | 196 000 | 390 000 | 1,0 | 3,90 |
8320Н | 100 | 102 | 170 | 55 | 2,5 | 232 000 | 475 000 | 0,95 | 5,10 |
8322Н | 110 | 112 | 190 | 63 | 3.0 | 275 000 | 610 000 | 0,85 | 7,90 |
Пример обозначения одинарного упорного шарикового подшипника серии диаметров 1, серии высот 0 с d = 30; D = 47; Н = 11:
Подшипник 8106Н ГОСТ 7872-89
141. Шариковые упорные двойные подшипники (по ГОСТ 7872-89)

Размеры, мм
Обозначение подшипников | d | d1 | d2 | D | H2 | а | r | С, Н | С0, Н | nпред·10-3, мин-1 | Масса, кг |
Серия диаметров 2, серия высот 0 | |||||||||||
38205Н | 25 | 27 | 20 | 47 | 28 | 7 | 1,0 | 28 000 | 42 500 | 3,8 | 0,23 |
38206Н | 30 | 32 | 25 | 52 | 29 | 7 | 1,0 | 25 500 | 40 000 | 3,6 | 0,27 |
38207Н | 35 | 37 | 30 | 62 | 34 | 8 | 1,5 | 35 500 | 57 000 | 3,2 | 0,42 |
38208Н | 40 | 42 | 30 | 68 | 36 | 9 | 1,5 | 46 500 | 83 000 | 2,8 | 0,54 |
38209Н | 45 | 47 | 35 | 73 | 37 | 9 | 1,5 | 39 000 | 67 000 | 2,6 | 0,62 |
38210Н | 50 | 52 | 40 | 78 | 39 | 9 | 1,5 | 50 000 | 90 000 | 2,4 | 0,71 |
38212Н | 60 | 62 | 50 | 95 | 46 | 10 | 1,5 | 62 000 | 118 000 | 1,9 | 1,25 |
38214Н | 70 | 72 | 55 | 105 | 47 | 10 | 1,5 | 65 500 | 134 000 | 1,8 | 1,36 |
38216Н | 80 | 82 | 65 | 116 | 48 | 10 | 1,5 | 75 000 | 160 000 | 1,7 | 1,69 |
38217Н | 85 | 87 | 70 | 125 | 55 | 12 | 1,5 | 98 000 | 212 000 | 1,6 | 2,34 |
Пример обозначения шарикового упорного двойного подшипника серии диаметров 2 с d2 = 20мм, D = 47мм и Н2 = 28мм.
Подшипник 38205Н ГОСТ 7872-89





